, New Orleans, LA 70119 (MLS# NO2523522)

New Orleans, LA 70119

$219,000
Property Type: MultiFamily Square Footage: 1,816 Status: Pending
Current Price: $219,000 List Date: 9/26/2025 Last Modified: 2/10/2026

Description

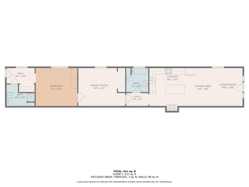
INVESTMENT OPPORTUNITY!!! Income-producing raised bungalow double in the New Marigny. Each side features two bedrooms, two bathrooms, and open-concept kitchen/living areas with hardwood floors, tall ceilings, mantles, and ornate wall moldings that highlight the homes historic character. Both units offer separate washer/dryer hookups and single garage parking, plus access to a small fenced courtyard. Currently leased to long-term tenants at $1,000 per month each, the property generates $24,000 in gross annual income. The raised basement, with impressive ceiling height, provides untapped potential for storage, studio, workshop, or expanded garage use. With stable tenants in place, solid cash flow, and room for future upside, this double is a smart portfolio addition in a desirable New Marigny location.

Supplements: ********

More Information MLS# NO2523522

Listing Info

Delayed Marketing: No List Price/SqFt: 120.59 Document Modified: 2026-02-09 20:16:45.165087 Status: Pending Listing Date: 2025-09-26 Listing Price: 219000 Current Price: $219,000 Type: Duplex Modification Timestamp: 2026-02-10T02:17:12Z Photo Modified: 2026-01-30T20:11:07Z

Location, Tax & Legal Info

Legal Desc: Sq 1053 Lot O Annette 32x119 DBLE 14/RM A/R

General Property Description

Lot Dimensions: 39x119.3 Stories: 1 SqFt - Total: 1816 SqFt - Source: Measured Individual Metered?: Yes Number of Units: 2

Remarks & Misc

Remarks: INVESTMENT OPPORTUNITY!!! Income-producing raised bungalow double in the New Marigny. Each side features two bedrooms, two bathrooms, and open-concept kitchen/living areas with hardwood floors, tall ceilings, mantles, and ornate wall moldings that highlight the homes historic character. Both units offer separate washer/dryer hookups and single garage parking, plus access to a small fenced courtyard. Currently leased to long-term tenants at $1,000 per month each, the property generates $24,000 in gross annual income. The raised basement, with impressive ceiling height, provides untapped potential for storage, studio, workshop, or expanded garage use. With stable tenants in place, solid cash flow, and room for future upside, this double is a smart portfolio addition in a desirable New Marigny location.

Office/Member/Contract Info

List AOR: NOMAR

Currently Not Used

Acreage Range: 0 - 0.5

Siding

Wood: 1

Parking

Garage: 1

Foundation

Piers: 1

Patio

Porch: 1

Roof

Composition: 1

Heating

Central: 1

Cooling

Central Air: 1

Fencing

Other: 1

Originating Details

Originating System ID: ROAMM Originating System Key: 52568939 Originating System Listing ID: 2523522 Originating System Name: ROAM Matrix

Location Tax Legal Info

Parish: Orleans State: LA Zip Code: 70119 Directions: Bounding Streets: N Miro, N Galves, Allen

Status Change Info

Under Contract Date: 2026-02-07

Property Features

Siding: Wood Parking: Garage Foundation: Piers Roof: Composition Heating: Central Cooling: Central Air Fencing: Other
Listing Office: Compass Historic (LATT09)
IDX
Last Updated: February - 10 - 2026
The data relating to real estate for sale or lease on this website comes in part from the IDX program of the REALTOR® Association of Acadiana MLS. The IDX information is provided exclusively for consumers’ personal, non-commericial use and may not be used for any purpose other than to identify prospective properties consumers may be interested in purchasing. Data is deemed reliable but is not guaranteed accurate by the MLS.