HIGHWAY 25 Highway, Covington, LA 70435 (MLS# NO2458524)

HIGHWAY 25 Highway, Covington, LA 70435

$932,334
Property Type: Land Lot Size (sq. ft.): 196,020 Status: Active
Current Price: $932,334 List Date: 7/15/2024 Last Modified: 1/12/2026

Description

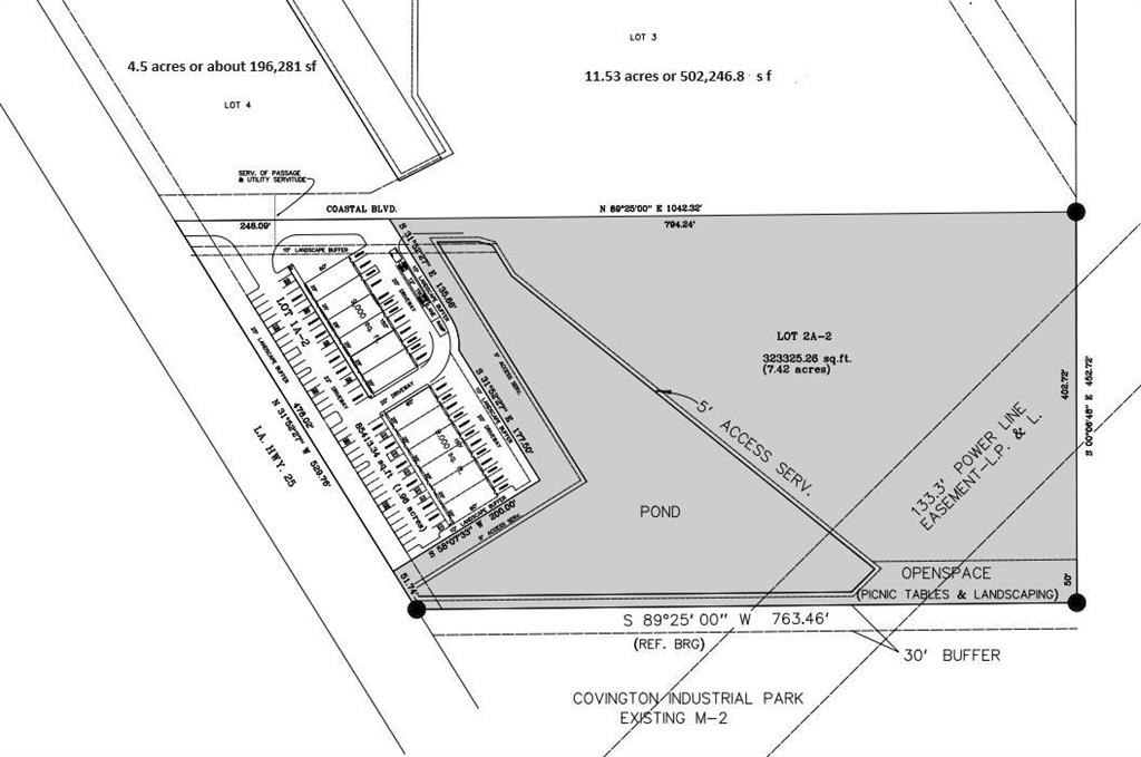
This site is a sub-divided site with drainage and water retention Coastal Blvd.in place. Its a ready build site.

Supplements: ********

More Information MLS# NO2458524

Listing Info

Delayed Marketing: No Status: Active Listing Date: 2024-07-15 Listing Price: 932334 Current Price: $932,334 Modification Timestamp: 2026-01-12T20:27:07Z

General Property Description

Lot Dimensions: 660.00 x 660.00 x 342.00 x 342.00 St Front (Ft): 660 Mobile Allowed: No Divisible: No Acreage Range: 3 - 5.99 Acres: 4.5

Remarks & Misc

Remarks: This site is a sub-divided site with drainage and water retention Coastal Blvd.in place. Its a ready build site.

Office/Member/Contract Info

List AOR: NOMAR

Land Type

Commercial: 1

Potential Use

Commercial: 1 Industrial: 1

Originating Details

Originating System ID: ROAMM Originating System Key: 46999737 Originating System Listing ID: 2458524 Originating System Name: ROAM Matrix

Location Tax Legal Info

Street Name: HIGHWAY 25 Highway Parish: St. Tammany State: LA Zip Code: 70435 Zone: indus Directions: Bounding Streets: Highway 25

Property Features

Land Type: Commercial Potential Use: Commercial; Industrial
Listing Office: ABEK Real Estate
IDX
Last Updated: January - 12 - 2026
The data relating to real estate for sale or lease on this website comes in part from the IDX program of the REALTOR® Association of Acadiana MLS. The IDX information is provided exclusively for consumers’ personal, non-commericial use and may not be used for any purpose other than to identify prospective properties consumers may be interested in purchasing. Data is deemed reliable but is not guaranteed accurate by the MLS.