940 ST FERDINAND Street, New Orleans, LA 70117
$949,000
Property Type:
Residential
Bedrooms:
9
Baths:
7.1
Square Footage:
3,951
Status:
Active
Current Price:
$949,000
List Date:
11/13/2025
Last Modified:
4/16/2026
Overview
Description
...
(Read more)
OWNER FINANCING AVAILABLE & BOND FOR DEED OPPORTUNITY. Located in the heart of the Marigny--one of New Orleans' most coveted neighborhoods, celebrated for its historic charm, architectural beauty, and vibrant culture--940 Saint Ferdinand Street offers a rare blend of old-world elegance and modern sophistication. Reimagined in 2020 through a meticulous down-to-the-studs renovation, this exceptional property was originally conceived as a luxurious extended-stay or corporate rental. Its flexible floor plan, however, allows for seamless use as a grand single-family residence with multiple private guest suites. Every detail has been thoughtfully designed to provide versatility, comfort, and refined style. Highlights include off-street parking for two vehicles, hardwood flooring throughout, dual laundry areas (up and down), custom kitchens and baths, keyless entry and security systems, and an interior fire sprinkler system. The first floor welcomes you with a light-filled living room featuring high ceilings, ornate crown molding, and an oversized kitchenette with island seating--primed and ready for personal enjoyment, entertaining or hosting guests. Multiple private bedroom suites and dual front entrances on both Saint Ferdinand and North Rampart Streets complete the ground level. Upstairs, the second floor opens into an expansive living, dining, and kitchen area with a soaring ceiling, complemented by two additional bedrooms and baths. Beyond the central stairwell lies the home's crown jewel: a spacious 418 SqFt rooftop deck offering sweeping views and a lovely setting for evening gatherings or quiet relaxation. A truly exceptional property, 940 Saint Ferdinand Street exemplifies the best of modern New Orleans living--where historic architecture, contemporary luxury, and unmatched flexibility converge.
Listing Details MLS# NO2530681
Listing Info
- Delayed Marketing
- No
- Listing Price
- 949000
- List Price/SqFt
- 268.61
- Type
- Single Family Residence
- Document Modified
- 2026-04-16 10:32:11.765606
- Modification Timestamp
- 2026-04-16T15:32:35Z
- Photo Modified
- 2026-01-30T20:36:24Z
Location Tax Legal Info
- Street Number
- 940
- Street Name
- ST FERDINAND Street
- Parish
- Orleans
- State
- LA
- Zip Code
- 70117
- Tax Assessment Number
- 2734-NRAMPARTST
- Directions
- Bounding Streets: N Rampart, Port, Burgundy
General Property Description
- # Bedrooms
- 9
- Baths - Full
- 7
- Baths - 1/2
- Yes
- Total Baths
- 7.1
- SqFt - Living
- 3533
- SqFt - Total
- 3951
- SqFt - Source
- Measured
- Stories
- 2
- Year Built
- 1900
- Acreage Range
- 0 - 0.5
- Lot Dimensions
- 29 x 100
- Pool on Subject Property
- No
Originating Details
- Originating System ID
- ROAMM
- Originating System Key
- 53064063
- Originating System Listing ID
- 2530681
- Originating System Name
- ROAM Matrix
Location, Tax & Legal Info
- Legal Desc
- SQ 279 LOT 14 N RAMPART AND ST FERDINAND 29X100 BR V 2/STORY 3 APTS 4/RM EA & BAR S/R
Remarks & Misc
- Remarks
- OWNER FINANCING AVAILABLE & BOND FOR DEED OPPORTUNITY. Located in the heart of the Marigny--one of New Orleans' most coveted neighborhoods, celebrated for its historic charm, architectural beauty, and vibrant culture--940 Saint Ferdinand Street offers a rare blend of old-world elegance and modern sophistication. Reimagined in 2020 through a meticulous down-to-the-studs renovation, this exceptional property was originally conceived as a luxurious extended-stay or corporate rental. Its flexible floor plan, however, allows for seamless use as a grand single-family residence with multiple private guest suites. Every detail has been thoughtfully designed to provide versatility, comfort, and refined style. Highlights include off-street parking for two vehicles, hardwood flooring throughout, dual laundry areas (up and down), custom kitchens and baths, keyless entry and security systems, and an interior fire sprinkler system. The first floor welcomes you with a light-filled living room featuring high ceilings, ornate crown molding, and an oversized kitchenette with island seating--primed and ready for personal enjoyment, entertaining or hosting guests. Multiple private bedroom suites and dual front entrances on both Saint Ferdinand and North Rampart Streets complete the ground level. Upstairs, the second floor opens into an expansive living, dining, and kitchen area with a soaring ceiling, complemented by two additional bedrooms and baths. Beyond the central stairwell lies the home's crown jewel: a spacious 418 SqFt rooftop deck offering sweeping views and a lovely setting for evening gatherings or quiet relaxation. A truly exceptional property, 940 Saint Ferdinand Street exemplifies the best of modern New Orleans living--where historic architecture, contemporary luxury, and unmatched flexibility converge.
More Information
Office/Member/Contract Info
- List AOR
- NOMAR
Style
- Other
- Yes
Siding
- Wood
- Yes
Foundation
- Piers
- Yes
Exterior
- Balcony
- Yes
Roof
- Composition
- Yes
- Other
- Yes
Heating
- Central
- Yes
Interior
- Guest Suite
- Yes
- Vaulted Ceilings
- Yes
- Wet Bar
- Yes
Cooling
- 2 or More Units
- Yes
- Central Air
- Yes
Appliances
- Dishwasher
- Yes
- Dryer
- Yes
- Ice Machine
- Yes
- Microwave
- Yes
- Refrigerator
- Yes
- Washer
- Yes
Utilities
- Elec: Entergy
- Yes
Rooms
- Bathroom 1
- Yes
- Bedroom 1
- Yes
- Dining Room
- Yes
- Kitchen
- Yes
- Living Room
- Yes
- Primary Bathroom
- Yes
- Primary Bedroom
- Yes
- Bedroom 2
- Yes
- Bedroom 3
- Yes
- Bedroom 4
- Yes
- Bedroom 5
- Yes
- Bathroom 2
- Yes
- Bedroom 6
- Yes
- Bedroom 7
- Yes
Fencing
- Wood
- Yes
- Other
- Yes
Lot
- Corner
- Yes
Financing
- Bond for Deed
- Yes
- Lease Purchase
- Yes
- Owner Finance
- Yes
Property Features
Style:
Other
Siding:
Wood
Foundation:
Piers
Roof:
Composition; Other
Interior:
Guest Suite; Vaulted Ceilings; Wet Bar
Heating:
Central
Cooling:
2 or More Units; Central Air
Appliances:
Dishwasher; Dryer; Ice Machine; Microwave; Refrigerator; Washer
Rooms:
Bathroom 1; Bedroom 1; Dining Room; Kitchen; Living Room; Primary Bathroom; Primary Bedroom; Bedroom 2; Bedroom 3; Bedroom 4; Bedroom 5; Bathroom 2; Bedroom 6; Bedroom 7
Fencing:
Wood; Other
Lot:
Corner
Exterior:
Balcony
Utilities:
Elec: Entergy
Financing:
Bond for Deed; Lease Purchase; Owner Finance
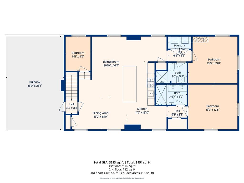
Room Information
| Room Name | Length | Width | Remarks |
|---|---|---|---|
| Primary Bathroom | 9.90 | 10.30 | Primary Bathroom |
| Primary Bathroom | 8.70 | 5.70 | Primary Bathroom |
| Bedroom 1 | 6.11 | 9.60 | Bedroom |
| Bathroom 1 | 10.20 | 5.70 | Bathroom |
| Bathroom 2 | 8.70 | 5.90 | Bathroom |
| Bedroom 2 | 14.00 | 12.80 | Bedroom |
| Bedroom 3 | 15.20 | 9.70 | Bedroom |
| Living Room | 25.10 | 12.10 | Living Room |
| Living Room | 20.10 | 16.11 | Living Room |
| Primary Bedroom | 13.10 | 12.80 | Primary Bedroom |
| Primary Bedroom | 13.90 | 12.50 | Primary Bedroom |
| Bedroom 4 | 14.70 | 12.20 | Bedroom |
| Bedroom 5 | 14.00 | 12.10 | Bedroom |
| Dining Room | 15.20 | 8.10 | Dining Room |
| Kitchen | 11.20 | 18.10 | Kitchen |
| Bedroom 6 | 13.11 | 9.70 | Bedroom |
| Bedroom 7 | 13.90 | 13.00 | Bedroom |
Documents
IDX
Listing Office:
Keller Williams Realty New Orleans
Last Updated: April - 16 - 2026
The data relating to real estate for sale or lease on this website comes in part from the IDX program of the REALTOR® Association of Acadiana MLS. The IDX information is provided exclusively for consumers’ personal, non-commericial use and may not be used for any purpose other than to identify prospective properties consumers may be interested in purchasing. Data is deemed reliable but is not guaranteed accurate by the MLS.

Property Disclosure ›