926 ORLEANS Avenue, New Orleans, LA 70116 (MLS# NO2537455)

926 ORLEANS Avenue, New Orleans, LA 70116

$1,175,000
Property Type: Residential Bedrooms: 2 Baths: 2 Square Footage: 2,999 Lot Size (sq. ft.): 2,614 Status: Active
Current Price: $1,175,000 List Date: 1/09/2026 Last Modified: 2/03/2026

Description

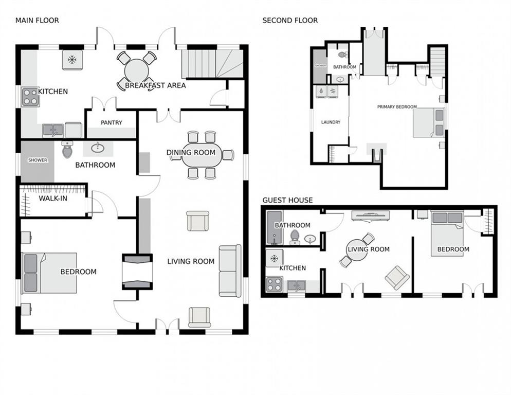
Built in 1824, this historic Creole Cottage sits in the very heart of the French Quarter, offering views of St. Louis Cathedral from Orleans Avenue. The main two-story residence is rich with original architectural details that honor its historic roots. Upon entering, you are greeted by warm masonry walls, rich wood floors, and an abundance of natural light streaming through French doors. The main home features a spacious living room, a stunning new gourmet kitchen complete with a butler's pantry, two generous private bedrooms, and two full baths. Just beyond the kitchen, a generously sized courtyard with a tranquil fountain provides the perfect setting for al fresco dining, barbecuing, or quiet relaxation. Across the courtyard from the primary residence, a two-unit accessory dwelling offers ample space for house guests or exceptional potential for rental revenue. This gives an additional 944 square feet of living space not included with the primary home!!!

Supplements: ********

More Information MLS# NO2537455

Listing Info

Delayed Marketing: No List Price/SqFt: 640.68 Document Modified: 2026-02-02 19:17:16.745148 Status: Active Listing Date: 2026-01-09 Listing Price: 1175000 Current Price: $1,175,000 Type: Single Family Residence Modification Timestamp: 2026-02-03T01:17:16Z Photo Modified: 2026-02-02T23:52:23Z

Location, Tax & Legal Info

Legal Desc: SQ 88 LOT 6 ORLEANS 37X76XVAR 926-28 ORLEANS AV

General Property Description

Lot Dimensions: 31X76 Stories: 2 SqFt - Living: 1834 SqFt - Source: Appraiser SqFt - Total: 2999 Acreage Range: 0 - 0.5 # Bedrooms: 2 Baths - Full: 2 Total Baths: 2 Year Built: 1824 Acres: 0.06

Remarks & Misc

Remarks: Built in 1824, this historic Creole Cottage sits in the very heart of the French Quarter, offering views of St. Louis Cathedral from Orleans Avenue. The main two-story residence is rich with original architectural details that honor its historic roots. Upon entering, you are greeted by warm masonry walls, rich wood floors, and an abundance of natural light streaming through French doors. The main home features a spacious living room, a stunning new gourmet kitchen complete with a butler's pantry, two generous private bedrooms, and two full baths. Just beyond the kitchen, a generously sized courtyard with a tranquil fountain provides the perfect setting for al fresco dining, barbecuing, or quiet relaxation. Across the courtyard from the primary residence, a two-unit accessory dwelling offers ample space for house guests or exceptional potential for rental revenue. This gives an additional 944 square feet of living space not included with the primary home!!!

Office/Member/Contract Info

List AOR: NOMAR

Siding

Stucco: 1

Parking

No Parking: 1

Construction

Brick: 1

Foundation

Piers: 1 Slab: 1

Exterior

Balcony: 1

Roof

Slate: 1

Heating

Central: 1 Other: 1

Cooling

Central Air: 1 Window Units: 1

Appliances

Dishwasher: 1

Utilities

Elec: Entergy: 1

Rooms

Bathroom 1: 1 Bedroom 1: 1 Dining Room: 1 Kitchen: 1 Laundry: 1 Living Room: 1 Primary Bathroom: 1 Primary Bedroom: 1 Pantry: 1

Fencing

Other: 1

Originating Details

Originating System ID: ROAMM Originating System Key: 56650943 Originating System Listing ID: 2537455 Originating System Name: ROAM Matrix

Location Tax Legal Info

Street Number: 926 Street Name: ORLEANS Avenue Parish: Orleans State: LA Zip Code: 70116 Tax Assessment Number: 207103207 Directions: Bounding Streets: DAUPHINE & BURGUNDY STREETS

Property Features

Siding: Stucco Parking: No Parking Construction: Brick Foundation: Piers; Slab Roof: Slate Heating: Central; Other Cooling: Central Air; Window Units Appliances: Dishwasher Rooms: Bathroom 1; Bedroom 1; Dining Room; Kitchen; Laundry; Living Room; Pantry; Primary Bathroom; Primary Bedroom Fencing: Other Exterior: Balcony Utilities: Elec: Entergy

Room Information

Dining Room Length: 12.10 Width: 10.90 Remarks: Dining Room Living Room Length: 12.10 Width: 16.10 Remarks: Living Room Laundry Length: 7.70 Width: 16.60 Remarks: Laundry Kitchen Length: 7.90 Width: 10.10 Remarks: Kitchen Primary Bedroom Length: 20.70 Width: 33.80 Remarks: Primary Bedroom Pantry Length: 6.00 Width: 3.40 Remarks: Pantry Primary Bathroom Length: 7.40 Width: 8.80 Remarks: Primary Bathroom Bathroom 1 Length: 10.00 Width: 9.40 Remarks: Bathroom Bedroom 1 Length: 14.20 Width: 13.60 Remarks: Bedroom
Listing Office: Snap Realty
IDX
Last Updated: February - 03 - 2026
The data relating to real estate for sale or lease on this website comes in part from the IDX program of the REALTOR® Association of Acadiana MLS. The IDX information is provided exclusively for consumers’ personal, non-commericial use and may not be used for any purpose other than to identify prospective properties consumers may be interested in purchasing. Data is deemed reliable but is not guaranteed accurate by the MLS.