916 & 918 TECHE Street, New Orleans, LA 70131
New Listing
$750,000
Property Type:
MultiFamily
Square Footage:
2,860
Lot Size (sq. ft.):
5,663
Status:
Active
Current Price:
$750,000
List Date:
1/30/2026
Last Modified:
2/03/2026
Description
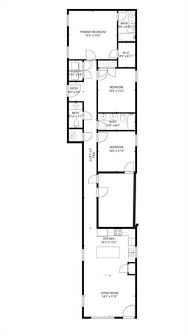
Experience the perfect blend of historic elegance and modern living in this beautifully 2 years young, maintained home situated in the sought after Algiers Historic District. With off street parking and an open concept design that captures the distinctive charm of New Orleans, this property is ideal for both homeowners and investors seeking versatile income opportunities. This property features two separate units, ideal for owner occupants, investors, or multigenerational living. Off street parking and an open concept layout with distinctive New Orleans character make this a unique opportunity. The downstairs unit (916) includes four spacious bedrooms and two and a half bathrooms. It boasts elegant, coffered ceilings in the living room, kitchen & primary suite, with soaring 11' ceilings throughout creating an airy, open atmosphere. The gourmet kitchen is equipped with custom cabinetry, quartz countertops, a large island, and a walk-in pantry. Appliances such as a wine fridge, stove, microwave, refrigerator, and dishwasher are included. The exterior features a solid wood door and double hung windows, with luxury vinyl wood plank flooring throughout. The backyard is spacious and perfect for outdoor entertaining, with a concrete patio. The upstairs unit (918) offers three bedrooms, each with its own full bathroom, and an open concept kitchen with high end finishes and appliances similar to the lower unit. A balcony provides an ideal spot for morning coffee or relaxing evenings. Additional highlights include premium craftsmanship and designer finishes throughout the property. The home is situated in a prime location just minutes from the CBD. It is located in an X flood zone, offering peace of mind. This property presents excellent income potential, live in one unit and rent out the other, or lease both units for maximum profitability. This is a rare opportunity to own a historic yet modernized property with versatile income options. Schedule your showing today!
Supplements: ********
More Information MLS# NO2540810
Listing Info
Delayed Marketing: No
List Price/SqFt: 262.24
Document Modified: 2026-02-02 15:50:13.900525
Status: Active
Listing Date: 2026-01-30
Listing Price: 750000
Current Price: $750,000
Type: Duplex
Modification Timestamp: 2026-02-03T15:39:18Z
Photo Modified: 2026-02-03T15:39:18Z
Location, Tax & Legal Info
Legal Desc: SQ 155 LOT 24 31 X 160 916/918 TECHE
General Property Description
Lot Dimensions: 36X164
Stories: 2
SqFt - Total: 2860
SqFt - Source: Measured
Number of Units: 2
Acres: 0.13
Remarks & Misc
Remarks: Experience the perfect blend of historic elegance and modern living in this beautifully 2 years young, maintained home situated in the sought after Algiers Historic District. With off street parking and an open concept design that captures the distinctive charm of New Orleans, this property is ideal for both homeowners and investors seeking versatile income opportunities. This property features two separate units, ideal for owner occupants, investors, or multigenerational living. Off street parking and an open concept layout with distinctive New Orleans character make this a unique opportunity. The downstairs unit (916) includes four spacious bedrooms and two and a half bathrooms. It boasts elegant, coffered ceilings in the living room, kitchen & primary suite, with soaring 11' ceilings throughout creating an airy, open atmosphere. The gourmet kitchen is equipped with custom cabinetry, quartz countertops, a large island, and a walk-in pantry. Appliances such as a wine fridge, stove, microwave, refrigerator, and dishwasher are included. The exterior features a solid wood door and double hung windows, with luxury vinyl wood plank flooring throughout. The backyard is spacious and perfect for outdoor entertaining, with a concrete patio. The upstairs unit (918) offers three bedrooms, each with its own full bathroom, and an open concept kitchen with high end finishes and appliances similar to the lower unit. A balcony provides an ideal spot for morning coffee or relaxing evenings. Additional highlights include premium craftsmanship and designer finishes throughout the property. The home is situated in a prime location just minutes from the CBD. It is located in an X flood zone, offering peace of mind. This property presents excellent income potential, live in one unit and rent out the other, or lease both units for maximum profitability. This is a rare opportunity to own a historic yet modernized property with versatile income options. Schedule your showing today!
Office/Member/Contract Info
List AOR: NOMAR
Currently Not Used
Acreage Range: 0 - 0.5
Foundation
Piers: 1
Patio
Porch: 1
Roof
Other: 1
Heating
Central: 1
Cooling
Central Air: 1
Unit 1
Type: Other
Beds: 3
Full Baths: 3
SqFt: 1533
Rent/Mo: 0
Unit 2
Type: Other
Beds: 3
Full Baths: 3
SqFt: 1533
Rent/Mo: 0
Fencing
Other: 1
Unit 3
Type: Other
Beds: 4
Full Baths: 2
Partial Baths: 1
Rent/Mo: 0
SqFt: 1327
Unit 4
Type: Other
Beds: 4
Full Baths: 2
Partial Baths: 1
SqFt: 1327
Rent/Mo: 0
Tenant Pays
Electric: 1
Gas: 1
Water: 1
Originating Details
Originating System ID: ROAMM
Originating System Key: 56877859
Originating System Listing ID: 2540810
Originating System Name: ROAM Matrix
Location Tax Legal Info
Street Number: 916 & 918
Street Name: TECHE Street
Parish: Orleans
State: LA
Zip Code: 70131
Tax Assessment Number: 513205218
Directions: From Mardi Gras Blvd, turn onto Teche St., duplex will be on your right. Bounding Streets: Homer St. & Newton St. & Mardi Gras Blvd.
Property Features
Foundation: Piers
Roof: Other
Heating: Central
Cooling: Central Air
Fencing: Other
Tenant Pays: Electric; Gas; Water
Documents
Listing Office:
CBTEC BELLE CHASSE
IDX
Last Updated: February - 03 - 2026
The data relating to real estate for sale or lease on this website comes in part from the IDX program of the REALTOR® Association of Acadiana MLS. The IDX information is provided exclusively for consumers’ personal, non-commericial use and may not be used for any purpose other than to identify prospective properties consumers may be interested in purchasing. Data is deemed reliable but is not guaranteed accurate by the MLS.
AS IS ›