911 GOVERNOR NICHOLLS Street, J, New Orleans, LA 70116
$845,000
Property Type:
Residential
Bedrooms:
2
Baths:
2.1
Square Footage:
1,102
Lot Size (sq. ft.):
11,761
Status:
Active
Current Price:
$845,000
List Date:
5/28/2025
Last Modified:
4/04/2026
Description
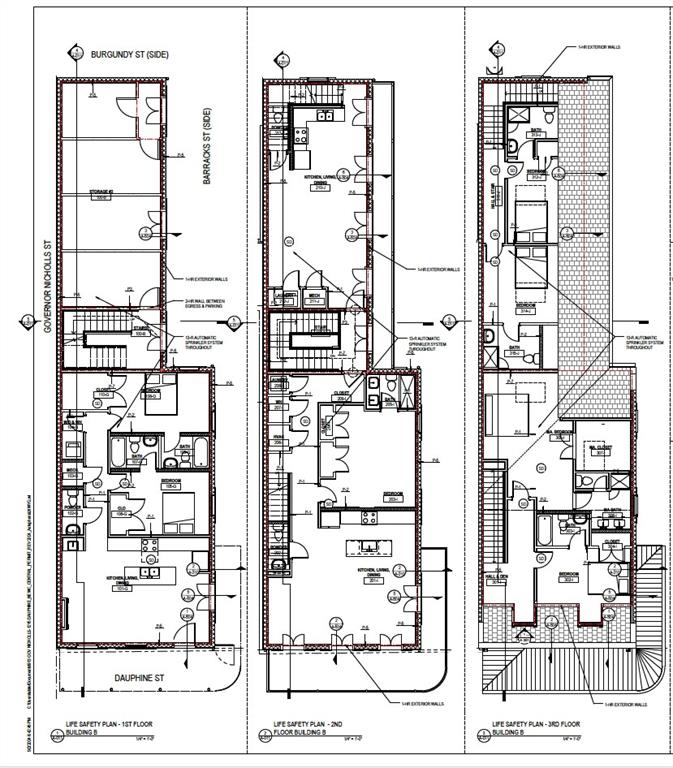
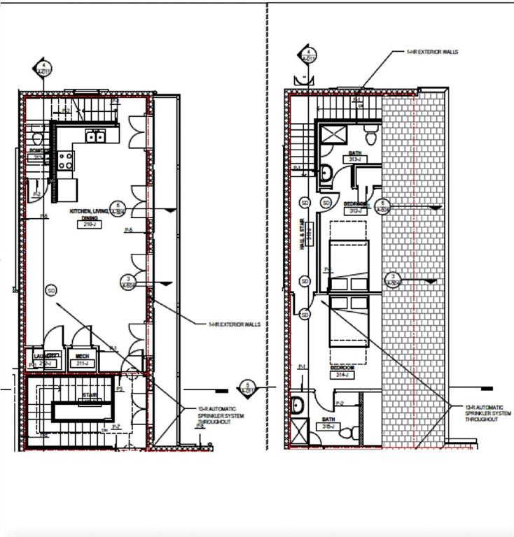
NEW CONSTRUCTION FQ CONDO! Great location just off the corner of Governor Nichols and Dauphine! Rare, Ground-Up New Construction Condo Complex! All units will feature gleaming Wood Floors, Brick Accents Walls, Custom Cabinetry, Specialty Tiles and More! With a total of 4 Units, this property will be Exclusive and One-of-a-Kind! This unit is a 2-story space and is in the main building. Secure and Gated with one assigned Parking Spot and Storage Unit...a rarity in the FQ! Opportunity to secure a unit NOW to customize/upgrade to your specifications! Condo Dues include Exterior Insurance, Common Area Maintenance, Water & More! Condo Fees are approximate and subject to change. Sale of inits is subject to completion of Condo Documents. EXPECTED COMPLETION DATE: AUGUST 2026
Supplements: ********
More Information MLS# NO2504093
Listing Info
Delayed Marketing: No
List Price/SqFt: 766.79
Property Attached: Yes
Sub-Type: Condominium
Document Modified: 2026-04-03 20:24:34.235975
Status: Active
Listing Date: 2025-05-28
Listing Price: 845000
Current Price: $845,000
Type: Single Family Residence
Modification Timestamp: 2026-04-04T01:24:50Z
Photo Modified: 2026-04-04T01:09:21Z
Location, Tax & Legal Info
Legal Desc: SQ 82 GOV NICHOLLS ST TO DAUPHINE ST LOT 2-A 80-53.4/133.4X127.10.4/98-29.10.4
General Property Description
Approximate Age: < 1 Year
Lot Dimensions: condo
Stories: 1
SqFt - Living: 1102
SqFt - Source: Blueprint
SqFt - Total: 1102
Assn Fee $: 983
Assn Fee Terms: Monthly
Acreage Range: 0 - 0.5
Pool on Subject Property: No
# Bedrooms: 2
Baths - Full: 2
Baths - 1/2: 1
Total Baths: 2.1
Year Built: 2025
Acres: 0.27
Remarks & Misc
Remarks: NEW CONSTRUCTION FQ CONDO! Great location just off the corner of Governor Nichols and Dauphine! Rare, Ground-Up New Construction Condo Complex! All units will feature gleaming Wood Floors, Brick Accents Walls, Custom Cabinetry, Specialty Tiles and More! With a total of 4 Units, this property will be Exclusive and One-of-a-Kind! This unit is a 2-story space and is in the main building. Secure and Gated with one assigned Parking Spot and Storage Unit...a rarity in the FQ! Opportunity to secure a unit NOW to customize/upgrade to your specifications! Condo Dues include Exterior Insurance, Common Area Maintenance, Water & More! Condo Fees are approximate and subject to change. Sale of inits is subject to completion of Condo Documents. EXPECTED COMPLETION DATE: AUGUST 2026
Office/Member/Contract Info
List AOR: NOMAR
Siding
Stucco: 1
Foundation
Slab: 1
Exterior
Balcony: 1
Roof
Composition: 1
Heating
Central: 1
Cooling
Central Air: 1
Appliances
Dishwasher: 1
Microwave: 1
Refrigerator: 1
Utilities
Elec: Entergy: 1
Countertops
Granite: 1
Fencing
Other: 1
Originating Details
Originating System ID: ROAMM
Originating System Key: 51325725
Originating System Listing ID: 2504093
Originating System Name: ROAM Matrix
Location Tax Legal Info
Street Number: 911
Street Name: GOVERNOR NICHOLLS Street
Unit #: J
Parish: Orleans
State: LA
Zip Code: 70116
Tax Assessment Number: 208102010
Directions: Bounding Streets: Dauphine
Property Features
Siding: Stucco
Foundation: Slab
Roof: Composition
Heating: Central
Cooling: Central Air
Appliances: Dishwasher; Microwave; Refrigerator
Countertops: Granite
Fencing: Other
Exterior: Balcony
Utilities: Elec: Entergy
Documents
Listing Office:
Burk Brokerage, LLC
IDX
Last Updated: April - 04 - 2026
The data relating to real estate for sale or lease on this website comes in part from the IDX program of the REALTOR® Association of Acadiana MLS. The IDX information is provided exclusively for consumers’ personal, non-commericial use and may not be used for any purpose other than to identify prospective properties consumers may be interested in purchasing. Data is deemed reliable but is not guaranteed accurate by the MLS.

Hold Harmless ›