888 GIROD Street, 201, New Orleans, LA 70113
$1,450,000
Property Type:
Residential
Bedrooms:
3
Baths:
3.1
Square Footage:
2,707
Status:
Active
Current Price:
$1,450,000
List Date:
1/29/2026
Last Modified:
4/21/2026
Overview
Description
...
(Read more)
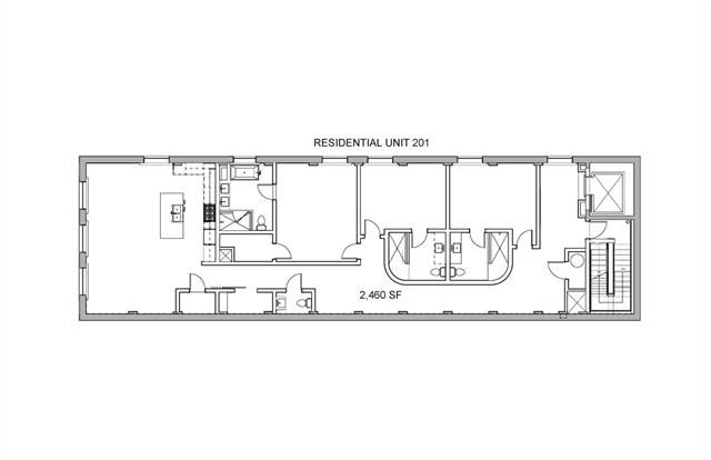
Private elevator access delivers you directly into this 2,460 SF luxury residence in the heart of the South Market District. Converted from a historic warehouse and tastefully renovated in 2020, the building features only three residential units, each occupying its own full floor. The interior blends the building's original architectural charm - exposed brick, wood beams, and oversized industrial windows - with high-end modern finishes throughout. Highlights include Brazilian walnut floors, custom marble and granite surfaces, professional-grade Thermador appliances with gas cooking, dual-zone Nest-controlled HVAC, and designer Delta and Brizo fixtures. Custom double-hung, double-paned windows provide exceptional natural light, comfort, and energy efficiency. You'll live just three blocks from the Superdome and Smoothie King Center, with award-winning restaurants, bars, and shopping only steps from your front door. Rouses Market, a full-service grocery store, is directly across the street, while the French Quarter, Warehouse District galleries, Ogden Museum of Southern Art, and the National WWII Museum are all within easy walking distance. The HOA covers exterior and flood insurance, pest control, water, gas, 1GB fiber internet, security systems, elevator service, and common area maintenance. Parking options include a contract surface lot directly behind the building or a covered contract garage across the street. Unit 301 (MLS #2545686) and unit 201 can be purchased together.
Listing Details MLS# NO2540212
Listing Info
- Delayed Marketing
- No
- Listing Price
- 1450000
- List Price/SqFt
- 589.43
- Type
- Single Family Residence
- Sub-Type
- Condominium
- Document Modified
- 2026-04-09 13:37:26.581482
- Modification Timestamp
- 2026-04-21T19:29:39Z
- Photo Modified
- 2026-02-03T15:46:38Z
Location Tax Legal Info
- Street Number
- 888
- Street Name
- GIROD Street
- Unit #
- 201
- Parish
- Orleans
- State
- LA
- Zip Code
- 70113
- Tax Assessment Number
- 700-BARONNEST
- Directions
- Bounding Streets: Baronne St & Girod St
General Property Description
- # Bedrooms
- 3
- Baths - Full
- 3
- Baths - 1/2
- Yes
- Total Baths
- 3.1
- SqFt - Living
- 2460
- SqFt - Total
- 2707
- SqFt - Source
- Public Record
- Year Built
- 1911
- Acreage Range
- 0 - 0.5
- Assn Fee $
- 1350
- Assn Fee Terms
- Monthly
- Lot Dimensions
- 28' x 97'
Originating Details
- Originating System ID
- ROAMM
- Originating System Key
- 56840749
- Originating System Listing ID
- 2540212
- Originating System Name
- ROAM Matrix
Remarks & Misc
- Remarks
- Private elevator access delivers you directly into this 2,460 SF luxury residence in the heart of the South Market District. Converted from a historic warehouse and tastefully renovated in 2020, the building features only three residential units, each occupying its own full floor. The interior blends the building's original architectural charm - exposed brick, wood beams, and oversized industrial windows - with high-end modern finishes throughout. Highlights include Brazilian walnut floors, custom marble and granite surfaces, professional-grade Thermador appliances with gas cooking, dual-zone Nest-controlled HVAC, and designer Delta and Brizo fixtures. Custom double-hung, double-paned windows provide exceptional natural light, comfort, and energy efficiency. You'll live just three blocks from the Superdome and Smoothie King Center, with award-winning restaurants, bars, and shopping only steps from your front door. Rouses Market, a full-service grocery store, is directly across the street, while the French Quarter, Warehouse District galleries, Ogden Museum of Southern Art, and the National WWII Museum are all within easy walking distance. The HOA covers exterior and flood insurance, pest control, water, gas, 1GB fiber internet, security systems, elevator service, and common area maintenance. Parking options include a contract surface lot directly behind the building or a covered contract garage across the street. Unit 301 (MLS #2545686) and unit 201 can be purchased together.
Office/Member/Contract Info
- List AOR
- NOMAR
More Information
Style
- Contemporary
- Yes
Construction
- Brick
- Yes
- Metal Siding
- Yes
Foundation
- Slab
- Yes
Roof
- Composition
- Yes
- Other
- Yes
Heating
- Central
- Yes
Cooling
- Central Air
- Yes
Appliances
- Dishwasher
- Yes
- Disposal
- Yes
- Dryer
- Yes
- Microwave
- Yes
- Refrigerator
- Yes
- Washer
- Yes
Utilities
- Elec: Entergy
- Yes
Countertops
- Granite
- Yes
Rooms
- Bedroom 1
- Yes
- Dining Room
- Yes
- Kitchen
- Yes
- Living Room
- Yes
- Primary Bedroom
- Yes
- Bedroom 2
- Yes
Amenities
- Elevator
- Yes
Property Features
Style:
Contemporary
Construction:
Brick; Metal Siding
Foundation:
Slab
Roof:
Composition; Other
Heating:
Central
Cooling:
Central Air
Appliances:
Dishwasher; Disposal; Dryer; Microwave; Refrigerator; Washer
Countertops:
Granite
Rooms:
Bedroom 1; Dining Room; Kitchen; Living Room; Primary Bedroom; Bedroom 2
Amenities:
Elevator
Utilities:
Elec: Entergy
Room Information
| Room Name | Remarks |
|---|---|
| Dining Room | Dining Room |
| Primary Bedroom | Primary Bedroom |
| Bedroom 1 | Bedroom |
| Kitchen | Kitchen |
| Living Room | Living Room |
| Bedroom 2 | Bedroom |
Documents
IDX
Listing Office:
SRSA Residential, Inc.
Last Updated: April - 21 - 2026
The data relating to real estate for sale or lease on this website comes in part from the IDX program of the REALTOR® Association of Acadiana MLS. The IDX information is provided exclusively for consumers’ personal, non-commericial use and may not be used for any purpose other than to identify prospective properties consumers may be interested in purchasing. Data is deemed reliable but is not guaranteed accurate by the MLS.

PD ›