8301-03 BELFAST Street, New Orleans, LA 70118
$329,000
Property Type:
MultiFamily
Square Footage:
1,960
Status:
Active
Current Price:
$329,000
List Date:
12/06/2025
Last Modified:
3/10/2026
Description
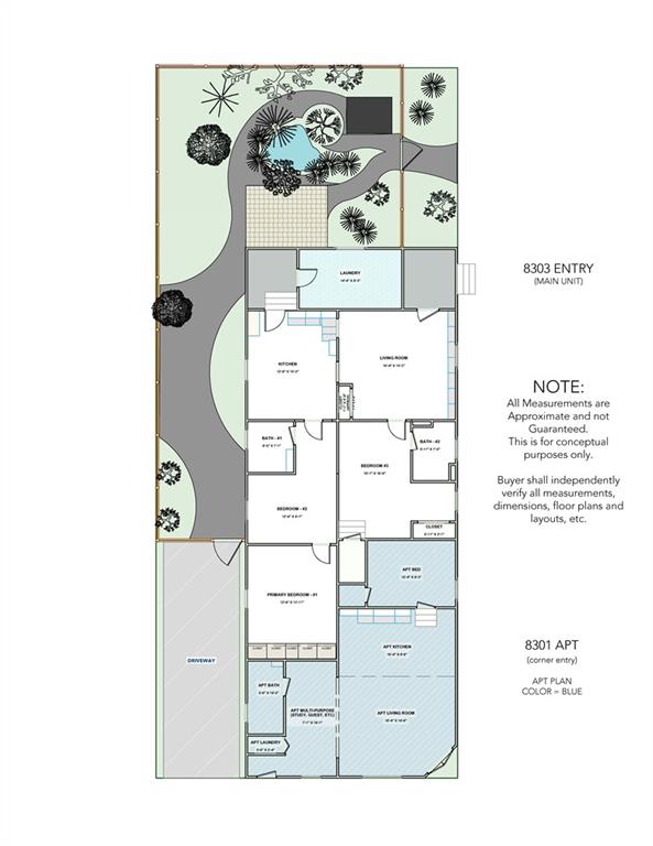
Historic corner duplex with driveway parking, located just blocks from the St. Charles streetcar line and within walking distance to Robert's Market. Generous backyard provides uncommon outdoor space for the area and offers flexibility for personalization. The property includes a 3 bed / 2 bath unit with two independent bedrooms plus a walk-through third bedroom, creating a flexible layout. The attic is accessed by a full stairway and has drywall in place, offering substantial storage or potential for future finishing (buyer to verify). The 1 bed / 1 bath unit, converted from the former corner storefront, features an open-concept kitchen and living area with tall ceilings. Each unit has separate utility meters and private washer/dryer setups. Exterior paint and related improvements completed November 2025. Central air installed in the larger unit August 2021. Located in Flood Zone X. Current flood insurance premium approximately $1,079/year; buyer to verify transferability. Seller elected not to renew leases to provide flexibility for the next owner. Projected combined rents approximately $3,250/month based on comparable leases. Under termite contract. Home warranty offered
Supplements: ********
More Information MLS# NO2534497
Listing Info
List Price/SqFt: 167.86
Document Modified: 2026-03-10 15:03:33.667732
Status: Active
Listing Date: 2025-12-06
Listing Price: 329000
Current Price: $329,000
Modification Timestamp: 2026-03-10T20:03:54Z
Photo Modified: 2026-02-26T02:20:15Z
Location, Tax & Legal Info
Legal Desc: SQ 391 LOT G BELFAST & DANTE 40 X 100 8301-03 BELFAST
General Property Description
Lot Dimensions: 40x100
Stories: 1
SqFt - Total: 1960
SqFt - Source: Measured
Individual Metered?: Yes
Number of Units: 2
Remarks & Misc
Remarks: Historic corner duplex with driveway parking, located just blocks from the St. Charles streetcar line and within walking distance to Robert's Market. Generous backyard provides uncommon outdoor space for the area and offers flexibility for personalization. The property includes a 3 bed / 2 bath unit with two independent bedrooms plus a walk-through third bedroom, creating a flexible layout. The attic is accessed by a full stairway and has drywall in place, offering substantial storage or potential for future finishing (buyer to verify). The 1 bed / 1 bath unit, converted from the former corner storefront, features an open-concept kitchen and living area with tall ceilings. Each unit has separate utility meters and private washer/dryer setups. Exterior paint and related improvements completed November 2025. Central air installed in the larger unit August 2021. Located in Flood Zone X. Current flood insurance premium approximately $1,079/year; buyer to verify transferability. Seller elected not to renew leases to provide flexibility for the next owner. Projected combined rents approximately $3,250/month based on comparable leases. Under termite contract. Home warranty offered
Office/Member/Contract Info
List AOR: NOMAR
Currently Not Used
Acreage Range: 0 - 0.5
Siding
Wood: 1
Construction
Frame: 1
Foundation
Piers: 1
Slab: 1
Patio
Porch: 1
Roof
Metal: 1
Heating
Central: 1
Natural Gas: 1
Cooling
Central Air: 1
Window Units: 1
Fencing
Other: 1
Lot
Corner: 1
Tenant Pays
Electric: 1
Gas: 1
Originating Details
Originating System ID: ROAMM
Originating System Key: 56386761
Originating System Listing ID: 2534497
Originating System Name: ROAM Matrix
Location Tax Legal Info
Street Number: 8301-03
Street Name: BELFAST Street
Parish: Orleans
State: LA
Zip Code: 70118
Tax Assessment Number: SQ 391 LOT G
Directions: From the intersection of S. Claiborne and S. Carrollton, turn left on Apple Street. Go two blocks and turn right on Dante Street. Go one block--house is on the left corner with a distinctive corner-store-style facade. Bounding Streets: Corner of Dante & Belfast. 2 blocks from S. Carrolton Ave.
Property Features
Siding: Wood
Construction: Frame
Foundation: Piers; Slab
Roof: Metal
Heating: Central; Natural Gas
Cooling: Central Air; Window Units
Lot: Corner
Fencing: Other
Tenant Pays: Electric; Gas
Documents
Listing Office:
KELLER WILLIAMS REALTY 455-0100
IDX
Last Updated: March - 10 - 2026
The data relating to real estate for sale or lease on this website comes in part from the IDX program of the REALTOR® Association of Acadiana MLS. The IDX information is provided exclusively for consumers’ personal, non-commericial use and may not be used for any purpose other than to identify prospective properties consumers may be interested in purchasing. Data is deemed reliable but is not guaranteed accurate by the MLS.

HOME UPDATES - 8301-03 BELFAST ›