632 N WHITE Street, New Orleans, LA 70119
$1,297,500
Property Type:
MultiFamily
Square Footage:
4,518
Lot Size (sq. ft.):
18,731
Status:
Active
Current Price:
$1,297,500
List Date:
3/17/2025
Last Modified:
9/25/2025
Description
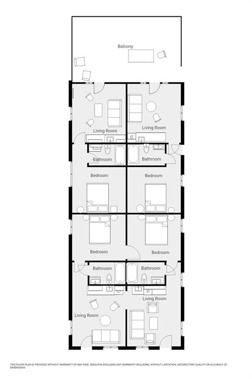
CAMPECHE BED & BREAKFAST - PRIME INVESTMENT OPPORTUNITY IN BAYOU ST. JOHN HUMU ZONING, CREATIVE FINANCING AVAILABLE. Welcome to Campeche, a versatile 8-unit property in the highly sought-after Bayou St. John neighborhood--offering a rare opportunity for multi-family conversion in one of New Orleans' most desirable residential areas. Originally operating as a bed & breakfast, this fully renovated property is perfectly positioned for an investor/developer/owner operator Each of the 8 units features private exterior egress/ingress, a wet bar, a private bathroom, and a living area (except for one studio unit), making for an effortless transition into long-term rental units. One unit is ADA-compliant, expanding accessibility options. 9 full bathrooms includes the one full bathroom with the office. The property's 2015 renovation preserved its historic charm while modernizing interiors--offering immediate leasing potential for market-rate or furnished rentals. Hu-MU Zoning allows for flexible uses. The adjacent property at 642 N. White Street is also available, presenting additional development opportunities for expanded rental income. EXCEPTIONAL LOCATION & MARKET APPEAL Located in Bayou St. John, Campeche is within walking distance of City Park, the New Orleans Fairgrounds (home of Jazz Fest), and popular dining and entertainment venues. This high-demand area continues to attract both tourists and long-term residents, making it an ideal investment for hospitality or residential repositioning.
Supplements: ********
More Information MLS# NO2491050
Listing Info
List Price/SqFt: 287.18
Status: Active
Listing Date: 2025-03-17
Listing Price: 1297500
Current Price: $1,297,500
Modification Timestamp: 2025-09-25T18:56:16Z
Photo Modified: 2025-03-17T15:51:05Z
Location, Tax & Legal Info
Legal Desc: SQ 359 LOT 1 N WHITE 35X182 LOT 2 N WHITE 35X182 LOT 3 N WHITE 35X181
General Property Description
Lot Dimensions: 0.44 acres
Stories: 2
SqFt - Total: 4518
SqFt - Source: Measured
Number of Units: 8
Acres: 0.43
Remarks & Misc
Remarks: CAMPECHE BED & BREAKFAST - PRIME INVESTMENT OPPORTUNITY IN BAYOU ST. JOHN HUMU ZONING, CREATIVE FINANCING AVAILABLE. Welcome to Campeche, a versatile 8-unit property in the highly sought-after Bayou St. John neighborhood--offering a rare opportunity for multi-family conversion in one of New Orleans' most desirable residential areas. Originally operating as a bed & breakfast, this fully renovated property is perfectly positioned for an investor/developer/owner operator Each of the 8 units features private exterior egress/ingress, a wet bar, a private bathroom, and a living area (except for one studio unit), making for an effortless transition into long-term rental units. One unit is ADA-compliant, expanding accessibility options. 9 full bathrooms includes the one full bathroom with the office. The property's 2015 renovation preserved its historic charm while modernizing interiors--offering immediate leasing potential for market-rate or furnished rentals. Hu-MU Zoning allows for flexible uses. The adjacent property at 642 N. White Street is also available, presenting additional development opportunities for expanded rental income. EXCEPTIONAL LOCATION & MARKET APPEAL Located in Bayou St. John, Campeche is within walking distance of City Park, the New Orleans Fairgrounds (home of Jazz Fest), and popular dining and entertainment venues. This high-demand area continues to attract both tourists and long-term residents, making it an ideal investment for hospitality or residential repositioning.
Office/Member/Contract Info
List AOR: NOMAR
Currently Not Used
Acreage Range: 0 - 0.5
Siding
Wood: 1
Parking
No Parking: 1
Foundation
Slab: 1
Roof
Other: 1
Heating
Central: 1
Interior
Handicap Acc: 1
Cooling
Central Air: 1
Originating Details
Originating System ID: ROAMM
Originating System Key: 50441813
Originating System Listing ID: 2491050
Originating System Name: ROAM Matrix
Location Tax Legal Info
Street Number: 632
Dir: N
Street Name: WHITE Street
Parish: Orleans
State: LA
Zip Code: 70119
Tax Assessment Number: 207200501
Directions: Bounding Streets: Toulouse St., St. Peter St.
Property Features
Siding: Wood
Parking: No Parking
Foundation: Slab
Roof: Other
Heating: Central
Cooling: Central Air
Interior: Handicap Acc
Listing Office:
Talbot Realty Group
IDX
Last Updated: September - 25 - 2025
The data relating to real estate for sale or lease on this website comes in part from the IDX program of the REALTOR® Association of Acadiana MLS. The IDX information is provided exclusively for consumers’ personal, non-commericial use and may not be used for any purpose other than to identify prospective properties consumers may be interested in purchasing. Data is deemed reliable but is not guaranteed accurate by the MLS.