623 BONNABEL Boulevard, Metairie, LA 70005 (MLS# NO2503622)

623 BONNABEL Boulevard, Metairie, LA 70005

$649,000
Property Type: Residential Bedrooms: 4 Baths: 3.1 Square Footage: 3,812 Lot Size (sq. ft.): 7,405 Status: Active
Current Price: $649,000 List Date: 5/31/2025 Last Modified: 2/06/2026

Description

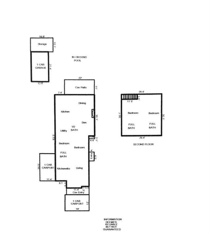
Completely updated expansive 4 bedroom 3.5 bath home on a 162' deep lot with a perfect multi-generational floorplan, pool, whole house liquid cooled generator, detached office/playroom/gym, storage room and off-street parking for 5+ cars (2 covered). Originally built and occupied by a member of the Bonnabel family, the property consists of the original home and an expansive camelback wing. The front portion can be a one or two bedroom living unit with its own kitchen, living room, entrance and enclosed side yard. Or use the second bedroom next to the laundry room as a home office, hobby or playroom. A shared laundry room with ample storage connects to the addition which features side door access from the driveway, an open concept chefs kitchen with a concrete topped culinary island, combination dining and living area that opens to the covered patio, pool, detached bonus room (converted garage) and storage room. Upstairs features a large primary suite with dual walk-in closets and oversize shower along with a second spacious bedroom and ensuite bath. Intentional and well-planned storage areas can be found in the walk-in pantry, laundry, culinary island and built in pet center. with a modern farmhouse feel and a floorplan that accommodates lifestyle changes such as live-in parents, caretakers, returning college students or extended stay guests, 623 Bonnabel makes a perfect forever home for any lifestyle.

Supplements: ********

More Information MLS# NO2503622

Listing Info

Delayed Marketing: No List Price/SqFt: 245.09 Property Attached: No Document Modified: 2026-02-06 17:16:47.120042 Status: Active Listing Date: 2025-05-30 Listing Price: 649000 Current Price: $649,000 Type: Single Family Residence Modification Timestamp: 2026-02-06T23:17:05Z Photo Modified: 2026-02-06T23:01:43Z

Location, Tax & Legal Info

Legal Desc: LOTS 10-A & 10-B SQ 36 BONNABEL PLACE

General Property Description

Lot Dimensions: 50 x 162 Stories: 2 SqFt - Living: 2648 SqFt - Source: Appraiser SqFt - Total: 3812 Acreage Range: 0 - 0.5 # Bedrooms: 4 Baths - Full: 3 Baths - 1/2: 1 Total Baths: 3.1 Year Built: 1950 Acres: 0.17

Remarks & Misc

Remarks: Completely updated expansive 4 bedroom 3.5 bath home on a 162' deep lot with a perfect multi-generational floorplan, pool, whole house liquid cooled generator, detached office/playroom/gym, storage room and off-street parking for 5+ cars (2 covered). Originally built and occupied by a member of the Bonnabel family, the property consists of the original home and an expansive camelback wing. The front portion can be a one or two bedroom living unit with its own kitchen, living room, entrance and enclosed side yard. Or use the second bedroom next to the laundry room as a home office, hobby or playroom. A shared laundry room with ample storage connects to the addition which features side door access from the driveway, an open concept chefs kitchen with a concrete topped culinary island, combination dining and living area that opens to the covered patio, pool, detached bonus room (converted garage) and storage room. Upstairs features a large primary suite with dual walk-in closets and oversize shower along with a second spacious bedroom and ensuite bath. Intentional and well-planned storage areas can be found in the walk-in pantry, laundry, culinary island and built in pet center. with a modern farmhouse feel and a floorplan that accommodates lifestyle changes such as live-in parents, caretakers, returning college students or extended stay guests, 623 Bonnabel makes a perfect forever home for any lifestyle.

Office/Member/Contract Info

List AOR: NOMAR

Siding

Stucco: 1 Vinyl Siding: 1

Equipment

Generator: 1

Foundation

Slab: 1

Exterior

Outdoor Shower: 1

Fireplace

Wood Burning: 1

Roof

Composition: 1

Heating

Central: 1

Interior

Guest Suite: 1

Cooling

2 or More Units: 1 Central Air: 1

Appliances

Dishwasher: 1 Dryer: 1 Microwave: 1 Refrigerator: 1 Washer: 1

Utilities

Elec: Entergy: 1

Countertops

Granite: 1

Rooms

Bedroom 1: 1 Bonus Room: 1 Dining Room: 1 Kitchen: 1 Laundry: 1 Living Room: 1 Primary Bathroom: 1 Primary Bedroom: 1 Other: 1 Pantry: 1 Bedroom 2: 1 Bedroom 3: 1

Waterfront

Dock/Mooring: 1

Fencing

Wood: 1 Other: 1

Other Structures

Cabana: 1 Workshop: 1

Window Features

Storm Window(s): 1

Pool

Inground: 1

Originating Details

Originating System ID: ROAMM Originating System Key: 51303725 Originating System Listing ID: 2503622 Originating System Name: ROAM Matrix

Location Tax Legal Info

Street Number: 623 Street Name: BONNABEL Boulevard Parish: Jefferson State: LA Zip Code: 70005 Tax Assessment Number: 0820030559 Directions: I-10 West, exit Bonnabel, tur right. Property is on the right hand side in the middle of the block Bounding Streets: I-10 Service Road, Demosthenes, Orion

Property Features

Siding: Stucco; Vinyl Siding Foundation: Slab Roof: Composition Interior: Guest Suite Fireplace: Wood Burning Heating: Central Cooling: 2 or More Units; Central Air Appliances: Dishwasher; Dryer; Microwave; Refrigerator; Washer Countertops: Granite Rooms: Bedroom 1; Bonus Room; Dining Room; Kitchen; Laundry; Living Room; Other; Pantry; Primary Bathroom; Primary Bedroom; Bedroom 2; Bedroom 3 Equipment: Generator Fencing: Wood; Other Exterior: Outdoor Shower Other Structures: Cabana; Workshop Window Features: Storm Window(s) Waterfront: Dock/Mooring Utilities: Elec: Entergy Pool: Inground

Room Information

Kitchen Length: 12.80 Width: 10.60 Remarks: Kitchen Kitchen Length: 14.10 Width: 12.40 Remarks: Kitchen Bedroom 1 Length: 11.40 Width: 10.50 Remarks: Bedroom Dining Room Length: 12.70 Width: 7.90 Remarks: Dining Room Primary Bathroom Length: 10.70 Width: 7.80 Remarks: Primary Bathroom Living Room Length: 17.00 Width: 12.70 Remarks: Living Room Living Room Length: 29.00 Width: 15.80 Remarks: Living Room Pantry Length: 6.70 Width: 4.60 Remarks: Pantry Bedroom 2 Length: 16.90 Width: 12.90 Remarks: Bedroom Laundry Length: 12.00 Width: 5.50 Remarks: Laundry Other Length: 16.60 Width: 10.10 Remarks: Storage Detached Bedroom 3 Length: 11.40 Width: 10.50 Remarks: Bedroom Bonus Room Length: 21.40 Width: 12.60 Remarks: Bonus Room Primary Bedroom Length: 16.80 Width: 15.00 Remarks: Primary Bedroom
Listing Office: Crescent Sotheby's International
IDX
Last Updated: February - 06 - 2026
The data relating to real estate for sale or lease on this website comes in part from the IDX program of the REALTOR® Association of Acadiana MLS. The IDX information is provided exclusively for consumers’ personal, non-commericial use and may not be used for any purpose other than to identify prospective properties consumers may be interested in purchasing. Data is deemed reliable but is not guaranteed accurate by the MLS.