61308 25TH Street, Lacombe, LA 70445
$189,000
Property Type:
Residential
Bedrooms:
3
Baths:
1.1
Square Footage:
1,470
Lot Size (sq. ft.):
28,750
Status:
Active
Current Price:
$189,000
List Date:
11/05/2025
Last Modified:
2/04/2026
Description
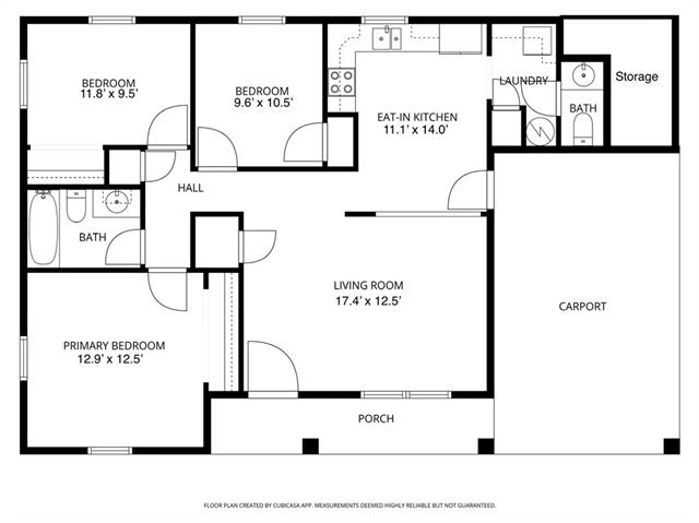
This could be your SPOT on a corner LOT! The home features 3 bedrooms, 1.5 bathrooms, a covered porch, built in carport, a detached garage that could be used as workshop, storage shed, and best of all it located in Flood Zone C.
Don't DELAY, Schedule your viewing TODAY!
Don't DELAY, Schedule your viewing TODAY!
Supplements: ********
More Information MLS# NO2529430
Listing Info
Delayed Marketing: No
List Price/SqFt: 162.51
Document Modified: 2026-02-04 14:47:34.265810
Status: Active
Listing Date: 2025-11-05
Listing Price: 189000
Current Price: $189,000
Type: Single Family Residence
Modification Timestamp: 2026-02-04T20:48:07Z
Photo Modified: 2026-02-04T20:32:53Z
Location, Tax & Legal Info
Legal Desc: LOTS 53 54 TAG A LONG CB 1222 655 CB 1344 367 CB 1504 322 INST NO 1035921 INST NO 1032338 INST NO 1449692
General Property Description
Lot Dimensions: 150x192.5
Stories: 1
SqFt - Living: 1163
SqFt - Source: Measured
SqFt - Total: 1470
Acreage Range: 0.51 - 0.99
Pool on Subject Property: No
# Bedrooms: 3
Baths - Full: 1
Baths - 1/2: 1
Total Baths: 1.1
Year Built: 1989
Acres: 0.66
Remarks & Misc
Remarks: This could be your SPOT on a corner LOT! The home features 3 bedrooms, 1.5 bathrooms, a covered porch, built in carport, a detached garage that could be used as workshop, storage shed, and best of all it located in Flood Zone C.
Don't DELAY, Schedule your viewing TODAY!
Don't DELAY, Schedule your viewing TODAY!
Office/Member/Contract Info
List AOR: NOMAR
Style
Traditional: 1
Parking
Carport: 1
Garage: 1
Construction
Brick: 1
Foundation
Slab: 1
Roof
Composition: 1
Heating
Central: 1
Interior
Attic Access: 1
Cooling
Central Air: 1
Water Source
Well: 1
Appliances
Dishwasher: 1
Rooms
Bedroom 1: 1
Kitchen: 1
Living Room: 1
Primary Bedroom: 1
Bedroom 2: 1
Fencing
Chain Link: 1
Other: 1
Lot
Corner: 1
Other Structures
Workshop: 1
Originating Details
Originating System ID: ROAMM
Originating System Key: 52969739
Originating System Listing ID: 2529430
Originating System Name: ROAM Matrix
Location Tax Legal Info
Street Number: 61308
Street Name: 25TH Street
Parish: St. Tammany
State: LA
Zip Code: 70445
Subdivision: Tag-A-Long
Tax Assessment Number: 77422
Directions: From Hwy 190 turn north on Davis Ave. then turn left on Tag A Long Rd., Property will be at the end of the street on right hand side. Bounding Streets: Tag A Long Rd. & Heltemes Ln.
Property Features
Style: Traditional
Parking: Carport; Garage
Construction: Brick
Foundation: Slab
Roof: Composition
Interior: Attic Access
Heating: Central
Cooling: Central Air
Appliances: Dishwasher
Rooms: Bedroom 1; Kitchen; Living Room; Primary Bedroom; Bedroom 2
Fencing: Chain Link; Other
Lot: Corner
Other Structures: Workshop
Water Source: Well
Room Information
Bedroom 1
Remarks: Bedroom
Primary Bedroom
Remarks: Primary Bedroom
Living Room
Remarks: Living Room
Bedroom 2
Remarks: Bedroom
Kitchen
Remarks: Kitchen
Documents
Listing Office:
XLV Realty LLC
IDX
Last Updated: February - 04 - 2026
The data relating to real estate for sale or lease on this website comes in part from the IDX program of the REALTOR® Association of Acadiana MLS. The IDX information is provided exclusively for consumers’ personal, non-commericial use and may not be used for any purpose other than to identify prospective properties consumers may be interested in purchasing. Data is deemed reliable but is not guaranteed accurate by the MLS.
Property Disclosure ›