4721-27 PRYTANIA Street, New Orleans, LA 70115
$1,599,000
Property Type:
MultiFamily
Square Footage:
6,412
Lot Size (sq. ft.):
6,098
Status:
Active
Current Price:
$1,599,000
List Date:
1/26/2026
Last Modified:
4/01/2026
Description
Rare opportunity on Prytania Street between Napoleon and Jefferson! This exceptional double offers generous space, privacy, and an unbeatable Uptown location just blocks from Mardi Gras parade routes, popular restaurants, and shopping. A truly special Uptown offering with impressive square footage and a versatile two-unit layout.
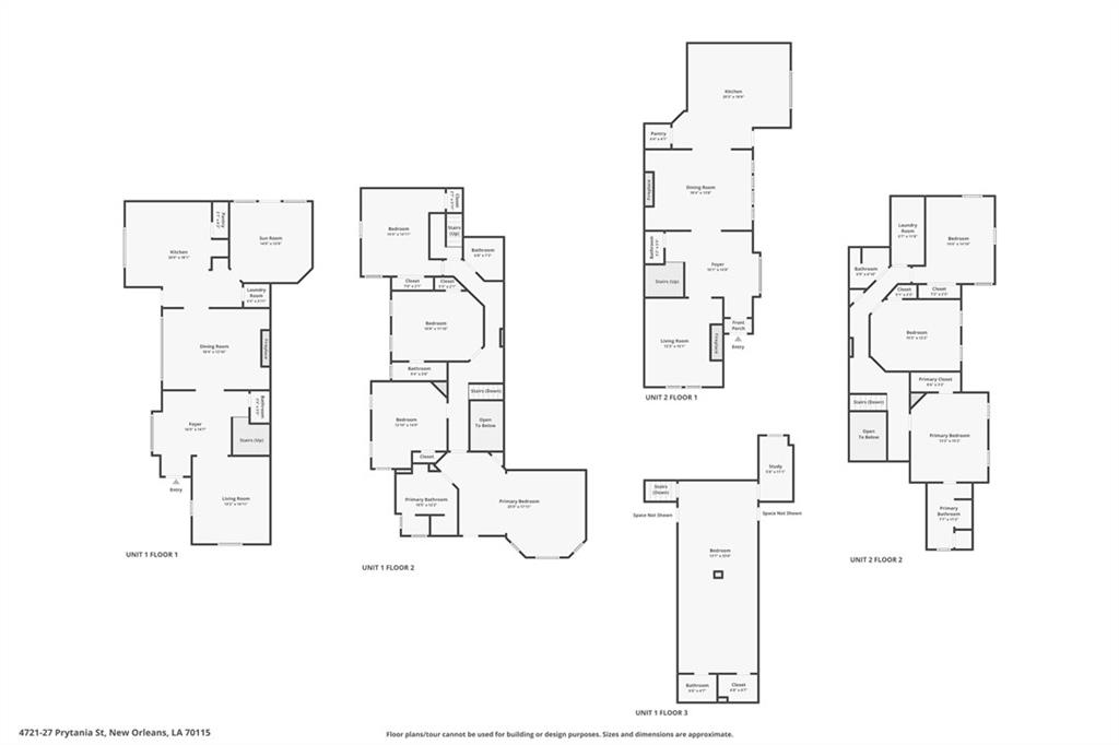
The larger unit features 4 bedrooms and 4.5 baths across three levels, including a spacious, sun-filled room off the kitchen ideal for entertaining. The third floor offers a full bath and flexible space for a bedroom, media room, or bonus area. The primary suite includes a private balcony overlooking historic Prytania Street.
The second unit offers 3 bedrooms and 2.5 baths, thoughtfully designed so no bedrooms share walls with the adjoining unit, enhancing privacy. Both residences include in-unit washer and dryers, expansive kitchens, tall ceilings, hardwood floors, and classic louvered shutters throughout.
Additional highlights include electric gated parking for multiple vehicles for each unit, a raised basement providing ample storage, flood zone X, and meticulous upkeep by the current owners. A truly special Uptown property offering space, charm, and versatility in one of New Orleans' most desirable locations.
The larger unit features 4 bedrooms and 4.5 baths across three levels, including a spacious, sun-filled room off the kitchen ideal for entertaining. The third floor offers a full bath and flexible space for a bedroom, media room, or bonus area. The primary suite includes a private balcony overlooking historic Prytania Street.
The second unit offers 3 bedrooms and 2.5 baths, thoughtfully designed so no bedrooms share walls with the adjoining unit, enhancing privacy. Both residences include in-unit washer and dryers, expansive kitchens, tall ceilings, hardwood floors, and classic louvered shutters throughout.
Additional highlights include electric gated parking for multiple vehicles for each unit, a raised basement providing ample storage, flood zone X, and meticulous upkeep by the current owners. A truly special Uptown property offering space, charm, and versatility in one of New Orleans' most desirable locations.
Supplements: ********
More Information MLS# NO2535143
Listing Info
Delayed Marketing: No
List Price/SqFt: 249.38
Document Modified: 2026-04-01 11:36:14.976024
Status: Active
Listing Date: 2026-01-26
Listing Price: 1599000
Current Price: $1,599,000
Type: Duplex
Modification Timestamp: 2026-04-01T16:36:28Z
Photo Modified: 2026-02-04T19:47:16Z
Location, Tax & Legal Info
Legal Desc: SQ 364 LOT B PRYTANIA
General Property Description
Lot Dimensions: 65 X 100
Stories: 3
SqFt - Total: 6412
SqFt - Source: Public Record
Number of Units: 2
Acres: 0.14
Remarks & Misc
Remarks: Rare opportunity on Prytania Street between Napoleon and Jefferson! This exceptional double offers generous space, privacy, and an unbeatable Uptown location just blocks from Mardi Gras parade routes, popular restaurants, and shopping. A truly special Uptown offering with impressive square footage and a versatile two-unit layout.
The larger unit features 4 bedrooms and 4.5 baths across three levels, including a spacious, sun-filled room off the kitchen ideal for entertaining. The third floor offers a full bath and flexible space for a bedroom, media room, or bonus area. The primary suite includes a private balcony overlooking historic Prytania Street.
The second unit offers 3 bedrooms and 2.5 baths, thoughtfully designed so no bedrooms share walls with the adjoining unit, enhancing privacy. Both residences include in-unit washer and dryers, expansive kitchens, tall ceilings, hardwood floors, and classic louvered shutters throughout.
Additional highlights include electric gated parking for multiple vehicles for each unit, a raised basement providing ample storage, flood zone X, and meticulous upkeep by the current owners. A truly special Uptown property offering space, charm, and versatility in one of New Orleans' most desirable locations.
The larger unit features 4 bedrooms and 4.5 baths across three levels, including a spacious, sun-filled room off the kitchen ideal for entertaining. The third floor offers a full bath and flexible space for a bedroom, media room, or bonus area. The primary suite includes a private balcony overlooking historic Prytania Street.
The second unit offers 3 bedrooms and 2.5 baths, thoughtfully designed so no bedrooms share walls with the adjoining unit, enhancing privacy. Both residences include in-unit washer and dryers, expansive kitchens, tall ceilings, hardwood floors, and classic louvered shutters throughout.
Additional highlights include electric gated parking for multiple vehicles for each unit, a raised basement providing ample storage, flood zone X, and meticulous upkeep by the current owners. A truly special Uptown property offering space, charm, and versatility in one of New Orleans' most desirable locations.
Office/Member/Contract Info
List AOR: NOMAR
Currently Not Used
Acreage Range: 0 - 0.5
Siding
Wood: 1
Foundation
Piers: 1
Exterior
Balcony: 1
Roof
Composition: 1
Heating
Central: 1
Cooling
Central Air: 1
Fencing
Other: 1
Tenant Pays
Electric: 1
Gas: 1
Originating Details
Originating System ID: ROAMM
Originating System Key: 56437583
Originating System Listing ID: 2535143
Originating System Name: ROAM Matrix
Location Tax Legal Info
Street Number: 4721-27
Street Name: PRYTANIA Street
Parish: Orleans
State: LA
Zip Code: 70115
Tax Assessment Number: 614225404
Directions: Bounding Streets: Pitt, Valence, Bordeaux
Property Features
Siding: Wood
Foundation: Piers
Roof: Composition
Heating: Central
Cooling: Central Air
Exterior: Balcony
Fencing: Other
Tenant Pays: Electric; Gas
Documents
Listing Office:
eXp Realty, LLC
IDX
Last Updated: April - 01 - 2026
The data relating to real estate for sale or lease on this website comes in part from the IDX program of the REALTOR® Association of Acadiana MLS. The IDX information is provided exclusively for consumers’ personal, non-commericial use and may not be used for any purpose other than to identify prospective properties consumers may be interested in purchasing. Data is deemed reliable but is not guaranteed accurate by the MLS.

Improvements ›