4513 ANNUNCIATION Street, New Orleans, LA 70115 (MLS# NO2524767)

4513 ANNUNCIATION Street, New Orleans, LA 70115

$898,000
Property Type: Residential Bedrooms: 4 Baths: 3.1 Square Footage: 3,353 Status: Active
Current Price: $898,000 List Date: 10/05/2025 Last Modified: 2/03/2026

Description

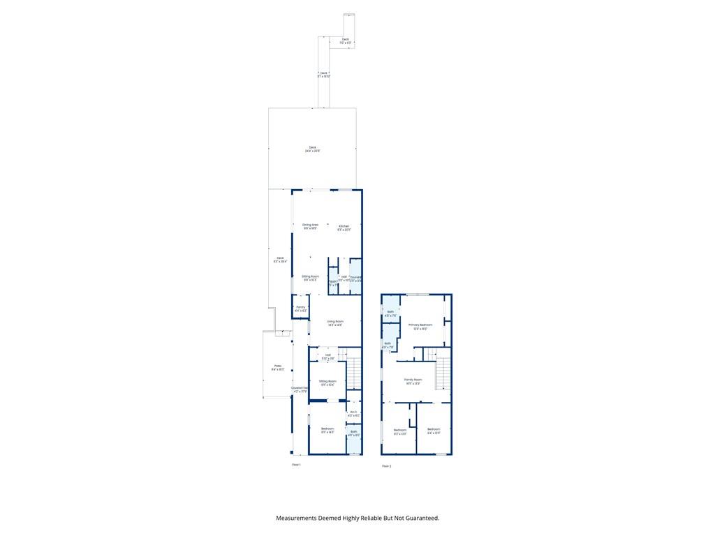
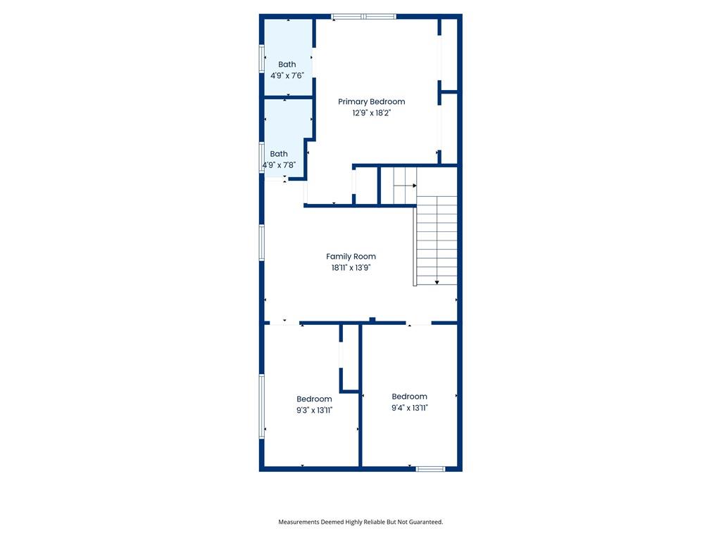
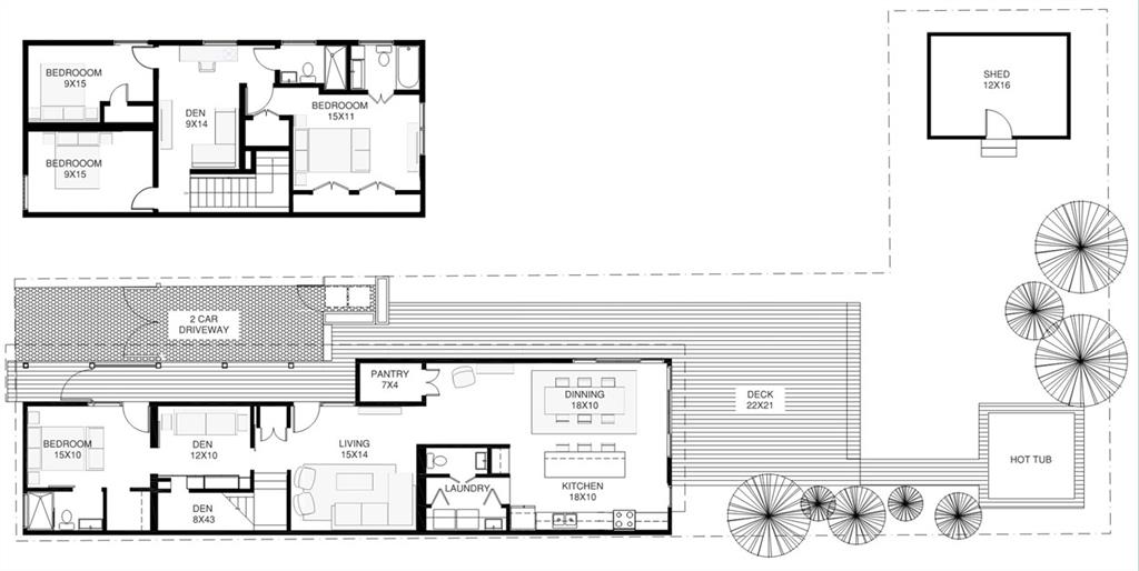
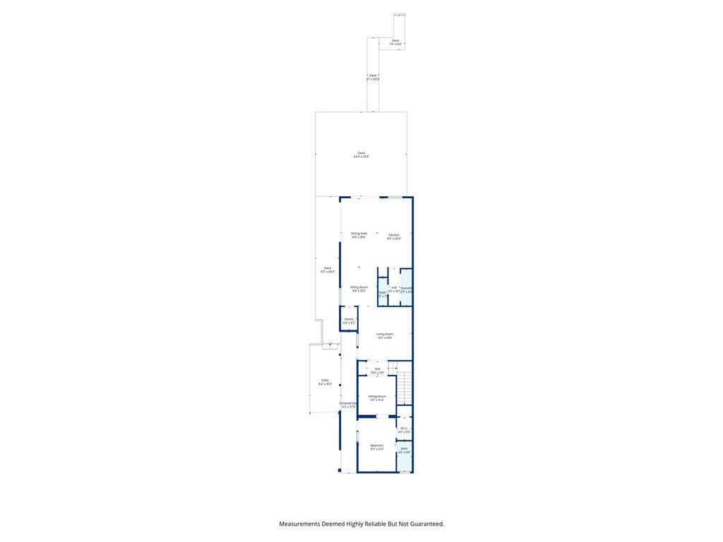
Designed by two architects as their home, this unique property with modern design in an urban oasis! This gated, contemporary residence sits on an oversized key lot in a prime Uptown location just off Magazine and Napoleon. Pass through the gates to the driveway and side deck, then enter this light-filled home with clean architectural lines, vaulted ceilings, and a flexible floor plan. Entertainers and home chefs will love the spacious open-concept kitchen with expansive island with quartz counters, separate coffee bar area with wine fridge and oversized pantry. Both the kitchen and dining area offer unobstructed views from the windows and sliding glass doors to the massive deck and greenery of the backyard. You'll throw memorable indoor/outdoor parties with this easy flow, especially during Mardi Gras! The key lot not only has room for dining, relaxing or playing, but also a hot tub and shed AND there's still plenty of room for a pool! The flexible areas at the front of the home offer built-ins and ample storage. These rooms can be a first floor primary suite or guest suite with independent entrance for multi-generational living or temporary visitors. Upstairs includes a generous flex space which can be a separate den, office or playroom. You will also find a second primary suite and 2 additional bedrooms and another bathroom. All of this is protected by a long lasting metal roof. This is a great opportunity to live in the "sliver by the river" in an X flood zone in a convenient and fun area just a few blocks from the dining and shopping of Magazine St as well as major grocery stores.

Supplements: ********

More Information MLS# NO2524767

Listing Info

Delayed Marketing: No List Price/SqFt: 376.05 Document Modified: 2026-02-02 19:14:09.607364 Status: Active Listing Date: 2025-10-05 Listing Price: 898000 Current Price: $898,000 Type: Single Family Residence Modification Timestamp: 2026-02-03T01:14:09Z Photo Modified: 2026-02-02T23:49:20Z

Location, Tax & Legal Info

Legal Desc: as per title

General Property Description

Lot Dimensions: 30/60 X 125/VAR Stories: 2 SqFt - Living: 2388 SqFt - Source: Appraiser SqFt - Total: 3353 Acreage Range: 0 - 0.5 Pool on Subject Property: No # Bedrooms: 4 Baths - Full: 3 Baths - 1/2: 1 Total Baths: 3.1 Year Built: 1910

Remarks & Misc

Remarks: Designed by two architects as their home, this unique property with modern design in an urban oasis! This gated, contemporary residence sits on an oversized key lot in a prime Uptown location just off Magazine and Napoleon. Pass through the gates to the driveway and side deck, then enter this light-filled home with clean architectural lines, vaulted ceilings, and a flexible floor plan. Entertainers and home chefs will love the spacious open-concept kitchen with expansive island with quartz counters, separate coffee bar area with wine fridge and oversized pantry. Both the kitchen and dining area offer unobstructed views from the windows and sliding glass doors to the massive deck and greenery of the backyard. You'll throw memorable indoor/outdoor parties with this easy flow, especially during Mardi Gras! The key lot not only has room for dining, relaxing or playing, but also a hot tub and shed AND there's still plenty of room for a pool! The flexible areas at the front of the home offer built-ins and ample storage. These rooms can be a first floor primary suite or guest suite with independent entrance for multi-generational living or temporary visitors. Upstairs includes a generous flex space which can be a separate den, office or playroom. You will also find a second primary suite and 2 additional bedrooms and another bathroom. All of this is protected by a long lasting metal roof. This is a great opportunity to live in the "sliver by the river" in an X flood zone in a convenient and fun area just a few blocks from the dining and shopping of Magazine St as well as major grocery stores.

Office/Member/Contract Info

List AOR: NOMAR

Style

Contemporary: 1

Siding

Hardiplank: 1

Construction

Metal Siding: 1

Foundation

Piers: 1

Roof

Metal: 1

Heating

Central: 1

Interior

Vaulted Ceilings: 1

Cooling

Central Air: 1

Appliances

Dishwasher: 1 Dryer: 1 Refrigerator: 1 Washer: 1

Utilities

Elec: Entergy: 1

Rooms

Bedroom 1: 1 Den: 1 Dining Room: 1 Foyer: 1 Kitchen: 1 Living Room: 1 Primary Bedroom: 1 Bedroom 2: 1 Bedroom 3: 1

Fencing

Full: 1 Other: 1

Other Structures

Workshop: 1

Originating Details

Originating System ID: ROAMM Originating System Key: 52647398 Originating System Listing ID: 2524767 Originating System Name: ROAM Matrix

Location Tax Legal Info

Street Number: 4513 Street Name: ANNUNCIATION Street Parish: Orleans State: LA Zip Code: 70115 Tax Assessment Number: 4513ANNUNCIATIONST Directions: Bounding Streets: Jena, Cadiz, Laurel, Tchoupitoulas

Property Features

Style: Contemporary Siding: Hardiplank Construction: Metal Siding Foundation: Piers Roof: Metal Interior: Vaulted Ceilings Heating: Central Cooling: Central Air Appliances: Dishwasher; Dryer; Refrigerator; Washer Rooms: Bedroom 1; Den; Dining Room; Foyer; Kitchen; Living Room; Primary Bedroom; Bedroom 2; Bedroom 3 Fencing: Full; Other Other Structures: Workshop Utilities: Elec: Entergy

Room Information

Primary Bedroom Length: 12.90 Width: 18.20 Remarks: Primary Bedroom Living Room Length: 14.30 Width: 14.60 Remarks: Living Room Bedroom 1 Length: 9.40 Width: 13.11 Remarks: Bedroom Bedroom 2 Length: 9.11 Width: 14.30 Remarks: Bedroom Foyer Length: 9.80 Width: 10.30 Remarks: Foyer Dining Room Length: 9.80 Width: 18.50 Remarks: Dining Room Kitchen Length: 9.30 Width: 20.11 Remarks: Kitchen Den Length: 9.11 Width: 10.40 Remarks: Den Bedroom 3 Length: 9.30 Width: 13.11 Remarks: Bedroom
Listing Office: Compass Garden District (LATT18)
IDX
Last Updated: February - 03 - 2026
The data relating to real estate for sale or lease on this website comes in part from the IDX program of the REALTOR® Association of Acadiana MLS. The IDX information is provided exclusively for consumers’ personal, non-commericial use and may not be used for any purpose other than to identify prospective properties consumers may be interested in purchasing. Data is deemed reliable but is not guaranteed accurate by the MLS.