437-39 S LOPEZ Street, New Orleans, LA 70119 (MLS# NO2540770)

437-39 S LOPEZ Street, New Orleans, LA 70119

$240,000
Property Type: MultiFamily Square Footage: 2,167 Lot Size (sq. ft.): 3,920 Status: Active
Current Price: $240,000 List Date: 1/30/2026 Last Modified: 3/05/2026

Description

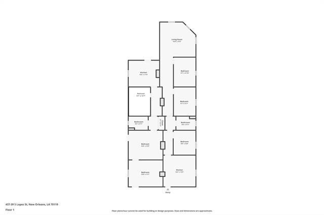
****3D Virtual tour and floorplan at this link- https://www.zillow.com/view-imx/7fa14083-f4d2-4828-b88f-7b97e0745114?setAttribution=mls&wl=true&initialViewType=pano&utm_source=dashboard **** Prime corner lot with exceptional walkability. Just steps from the new Trader Joe's, Whole Foods, Parkway Po' Boys, UMC Hospital, and the Lafitte Greenway, this property offers unbeatable convenience and lifestyle appeal. Features high ceilings throughout, central A/C, and tons of off-street parking--rare for the area. *Current flood quote at $1,224*

Supplements: ********

More Information MLS# NO2540770

Listing Info

Delayed Marketing: No List Price/SqFt: 110.75 Document Modified: 2026-02-01 20:38:59.659656 Status: Active Listing Date: 2026-01-30 Listing Price: 240000 Current Price: $240,000 Type: Duplex Modification Timestamp: 2026-03-05T00:07:01Z Photo Modified: 2026-02-03T15:40:39Z

Location, Tax & Legal Info

Legal Desc: SQ 661 LOT 1 LOPEZ AND BAUDIN 35' 6" X 120' 437-39 SO LOPEZ

General Property Description

Lot Dimensions: 35.5 x 120 Stories: 1 SqFt - Total: 2167 SqFt - Source: Measured Individual Metered?: Yes Number of Units: 2 Acres: 0.09

Remarks & Misc

Remarks: ****3D Virtual tour and floorplan at this link- https://www.zillow.com/view-imx/7fa14083-f4d2-4828-b88f-7b97e0745114?setAttribution=mls&wl=true&initialViewType=pano&utm_source=dashboard **** Prime corner lot with exceptional walkability. Just steps from the new Trader Joe's, Whole Foods, Parkway Po' Boys, UMC Hospital, and the Lafitte Greenway, this property offers unbeatable convenience and lifestyle appeal. Features high ceilings throughout, central A/C, and tons of off-street parking--rare for the area. *Current flood quote at $1,224*

Office/Member/Contract Info

List AOR: NOMAR

Currently Not Used

Acreage Range: 0 - 0.5

Siding

Wood: 1

Parking

Parking Lot: 1

Foundation

Piers: 1

Roof

Composition: 1

Heating

Central: 1

Cooling

Central Air: 1

Fencing

Other: 1

Lot

Corner: 1

Tenant Pays

Electric: 1 Gas: 1 Water: 1

Originating Details

Originating System ID: ROAMM Originating System Key: 56876461 Originating System Listing ID: 2540770 Originating System Name: ROAM Matrix

Location Tax Legal Info

Street Number: 437-39 Dir: S Street Name: LOPEZ Street Parish: Orleans State: LA Zip Code: 70119 Tax Assessment Number: 105205613 Directions: Bounding Streets: tulane and canal

Property Features

Siding: Wood Parking: Parking Lot Foundation: Piers Roof: Composition Heating: Central Cooling: Central Air Lot: Corner Fencing: Other Tenant Pays: Electric; Gas; Water
Listing Office: Sound Realty LLC
IDX
Last Updated: March - 05 - 2026
The data relating to real estate for sale or lease on this website comes in part from the IDX program of the REALTOR® Association of Acadiana MLS. The IDX information is provided exclusively for consumers’ personal, non-commericial use and may not be used for any purpose other than to identify prospective properties consumers may be interested in purchasing. Data is deemed reliable but is not guaranteed accurate by the MLS.