421 BEAR Drive, Arabi, LA 70032
$350,000
Property Type:
Residential
Bedrooms:
3
Baths:
3.1
Square Footage:
3,555
Status:
Active
Current Price:
$350,000
List Date:
9/01/2025
Last Modified:
4/12/2026
Description
New Flooring, Paint, and Updates in Primary Bath. 3/2.5 House, Guest studio with full bath/small kitchenette. House is approx. 2,500 sq ft. Studio is approx. 655 sq ft. 10ft ceilings & large windows for natural light. Home has storm shutters. Raised slab home. Primary bedroom located on 1st floor has large bath with a separate shower/soaking tub and 2 walk-in closets. Upstairs is 2 HUGE bedrooms with a Jack -Jill bath, walk-in closets upstairs. Living area is large but cozy with a gas fireplace and open to the kitchen/dining area. Ready for parties! Grill or host crawfish boils no matter the weather with this covered patio. There is still enough green space for a cocktail POOL or garden.New flooring in living room, foyer, and all bedrooms. Fresh paint in most rooms. Downstair HVAC is newer. LOT Nextdoor is is also for sale. 800 Cougar- recent resubdivision
Supplements: ********
More Information MLS# NO2519484
Listing Info
List Price/SqFt: 110.76
Document Modified: 2026-04-11 12:55:24.853496
Status: Active
Listing Date: 2025-09-01
Listing Price: 350000
Current Price: $350,000
Type: Single Family Residence
Modification Timestamp: 2026-04-12T06:45:55Z
Photo Modified: 2026-04-10T21:59:31Z
Location, Tax & Legal Info
Legal Desc: LOT 986-A SQ.39 CAROLYN PARK BEING A RESUB OF OF LOTS 986A into LOT 986A1 and 986A2
General Property Description
Lot Dimensions: 110 x 60 x 30 x 15 x 80 x 75
Stories: 2
SqFt - Living: 3160
SqFt - Source: Measured
SqFt - Total: 3555
Acreage Range: 0 - 0.5
# Bedrooms: 3
Baths - Full: 3
Baths - 1/2: 1
Total Baths: 3.1
Remarks & Misc
Remarks: New Flooring, Paint, and Updates in Primary Bath. 3/2.5 House, Guest studio with full bath/small kitchenette. House is approx. 2,500 sq ft. Studio is approx. 655 sq ft. 10ft ceilings & large windows for natural light. Home has storm shutters. Raised slab home. Primary bedroom located on 1st floor has large bath with a separate shower/soaking tub and 2 walk-in closets. Upstairs is 2 HUGE bedrooms with a Jack -Jill bath, walk-in closets upstairs. Living area is large but cozy with a gas fireplace and open to the kitchen/dining area. Ready for parties! Grill or host crawfish boils no matter the weather with this covered patio. There is still enough green space for a cocktail POOL or garden.New flooring in living room, foyer, and all bedrooms. Fresh paint in most rooms. Downstair HVAC is newer. LOT Nextdoor is is also for sale. 800 Cougar- recent resubdivision
Office/Member/Contract Info
List AOR: NOMAR
Style
Acadian: 1
Construction
Brick: 1
Foundation
Piers: 1
Slab: 1
Patio
Covered: 1
Fireplace
Gas Log: 1
Roof
Composition: 1
Heating
Central: 1
Interior
Guest Suite: 1
Cooling
2 or More Units: 1
Appliances
Dishwasher: 1
Disposal: 1
Refrigerator: 1
Utilities
Elec: Entergy: 1
Rooms
Bedroom 1: 1
Foyer: 1
Kitchen: 1
Laundry: 1
Living Room: 1
Primary Bathroom: 1
Primary Bedroom: 1
Bedroom 2: 1
Bedroom 3: 1
Bedroom 4: 1
Bedroom 5: 1
Bedroom 6: 1
Bedroom 7: 1
Bedroom 8: 1
Fencing
Other: 1
Other Structures
Barn(s): 1
Window Features
Storm Window(s): 1
Financing
Bond for Deed: 1
Lease Purchase: 1
Owner Finance: 1
Originating Details
Originating System ID: ROAMM
Originating System Key: 52303216
Originating System Listing ID: 2519484
Originating System Name: ROAM Matrix
Location Tax Legal Info
Street Number: 421
Street Name: BEAR Drive
Parish: St. Bernard
State: LA
Zip Code: 70032
Tax Assessment Number: 20070390986A
Directions: West Judge Perez East to Perrin. Turn North on Perrin and Right on Bear. Property on the Corner of Bear and Cougar Bounding Streets: Cougar and Bear/Corner
Property Features
Style: Acadian
Construction: Brick
Foundation: Piers; Slab
Roof: Composition
Interior: Guest Suite
Fireplace: Gas Log
Heating: Central
Cooling: 2 or More Units
Appliances: Dishwasher; Disposal; Refrigerator
Rooms: Bedroom 1; Foyer; Kitchen; Laundry; Living Room; Primary Bathroom; Primary Bedroom; Bedroom 2; Bedroom 3; Bedroom 4; Bedroom 5; Bedroom 6; Bedroom 7; Bedroom 8
Fencing: Other
Patio: Covered
Other Structures: Barn(s)
Window Features: Storm Window(s)
Utilities: Elec: Entergy
Financing: Bond for Deed; Lease Purchase; Owner Finance
Room Information
Kitchen
Length: 8.70
Width: 16.10
Remarks: Kitchen
Kitchen
Length: 8.70
Width: 16.10
Remarks: Kitchen
Kitchen
Length: 8.70
Width: 16.10
Remarks: Kitchen
Kitchen
Length: 8.70
Width: 16.10
Remarks: Kitchen
Living Room
Length: 22.10
Width: 20.40
Remarks: Living Room
Living Room
Length: 22.10
Width: 20.40
Remarks: Living Room
Living Room
Length: 22.10
Width: 20.40
Remarks: Living Room
Living Room
Length: 22.10
Width: 20.40
Remarks: Living Room
Laundry
Length: 5.70
Width: 8.00
Remarks: Laundry
Laundry
Length: 5.70
Width: 8.00
Remarks: Laundry
Laundry
Length: 5.70
Width: 8.00
Remarks: Laundry
Laundry
Length: 5.70
Width: 8.00
Remarks: Laundry
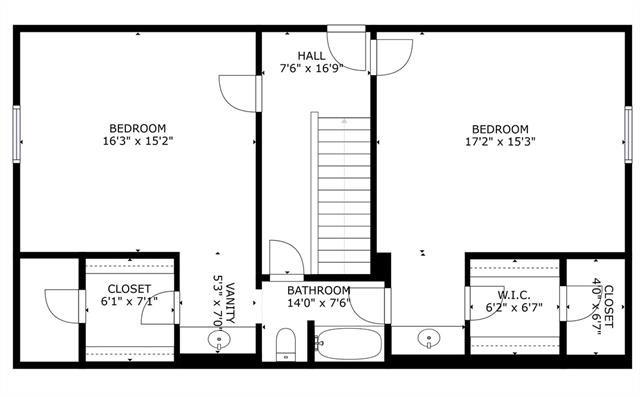
Bedroom 1
Length: 16.30
Width: 15.20
Remarks: Bedroom
Bedroom 2
Length: 17.20
Width: 15.30
Remarks: Bedroom
Foyer
Length: 7.80
Width: 7.30
Remarks: Foyer
Foyer
Length: 7.80
Width: 7.30
Remarks: Foyer
Foyer
Length: 7.80
Width: 7.30
Remarks: Foyer
Foyer
Length: 7.80
Width: 7.30
Remarks: Foyer
Primary Bedroom
Length: 16.00
Width: 18.70
Remarks: Primary Bedroom
Primary Bedroom
Length: 16.00
Width: 18.70
Remarks: Primary Bedroom
Primary Bedroom
Length: 16.00
Width: 18.70
Remarks: Primary Bedroom
Primary Bedroom
Length: 16.00
Width: 18.70
Remarks: Primary Bedroom
Bedroom 3
Length: 16.30
Width: 15.20
Remarks: Bedroom
Bedroom 4
Length: 16.30
Width: 15.20
Remarks: Bedroom
Primary Bathroom
Length: 12.60
Width: 15.20
Remarks: Primary Bathroom
Primary Bathroom
Length: 12.60
Width: 15.20
Remarks: Primary Bathroom
Primary Bathroom
Length: 12.60
Width: 15.20
Remarks: Primary Bathroom
Primary Bathroom
Length: 12.60
Width: 15.20
Remarks: Primary Bathroom
Bedroom 5
Length: 17.20
Width: 15.30
Remarks: Bedroom
Bedroom 6
Length: 16.30
Width: 15.20
Remarks: Bedroom
Bedroom 7
Length: 17.20
Width: 15.30
Remarks: Bedroom
Bedroom 8
Length: 17.20
Width: 15.30
Remarks: Bedroom
Documents
Listing Office:
Mirambell Realty
IDX
Last Updated: April - 12 - 2026
The data relating to real estate for sale or lease on this website comes in part from the IDX program of the REALTOR® Association of Acadiana MLS. The IDX information is provided exclusively for consumers’ personal, non-commericial use and may not be used for any purpose other than to identify prospective properties consumers may be interested in purchasing. Data is deemed reliable but is not guaranteed accurate by the MLS.

Flood ›