411 CLAIBORNE Court, Jefferson, LA 70121 (MLS# NO2539987)

411 CLAIBORNE Court, Jefferson, LA 70121

$450,000
Property Type: Residential Bedrooms: 4 Baths: 3 Square Footage: 2,652 Status: Active
Current Price: $450,000 List Date: 1/26/2026 Last Modified: 2/04/2026

Description

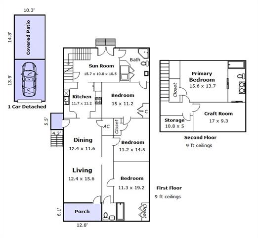
Welcome to 411 Claiborne Court, a charming raised camelback home in the desirable Old Jefferson neighborhood. This inviting residence offers 4 bedrooms, 3 bathrooms, and 2,258 square feet of living space, blending classic character with modern updates. Relax on the welcoming front porch, overlooking landscaped gardens and enjoying the peaceful sounds of nature. Inside, solid oak flooring flows throughout the living areas, dining room, bedrooms, and hallways, creating warmth and continuity. The open living and dining area is designed for entertaining, while the custom kitchen provides a functional and stylish space for everyday cooking. Bathrooms were renovated in 2024-2025, adding fresh, updated finishes. The primary bedroom upstairs offers privacy and includes an adjoining office or craft room plus additional storage. A light-filled sunroom opens to the landscaped backyard and covered patio, a spot for relaxing or hosting guests. Professionally designed landscaping features irrigation and lighting to highlight the trees and gardens with minimal maintenance. Including with the home, is a Generac whole house generator which gives you peace of mind when the power goes out. Property is located in flood zone "X". Conveniently located by the Mississippi River, Ochsner Hospital, and with easy access to New Orleans, Metairie, and the West Bank via the Huey P. Long Bridge, this home also offers close proximity to the levee walking path and outdoor activity options. Window treatments & rods in living, dining, primary & rear bedroom are excluded.

Supplements: ********

Open Houses

Sunday, February 08, 12:00 pm - 2:00 pm
Tuesday, February 10, 11:00 am - 1:00 pm

More Information MLS# NO2539987

Listing Info

Delayed Marketing: No List Price/SqFt: 199.29 Document Modified: 2026-02-03 18:23:20.542110 Status: Active Listing Date: 2026-01-26 Listing Price: 450000 Current Price: $450,000 Type: Single Family Residence Modification Timestamp: 2026-02-04T00:23:34Z Photo Modified: 2026-02-03T15:53:11Z

Location, Tax & Legal Info

Legal Desc: LOTS 22 & 23 SQ E CLAIBORNE GATEWAY

General Property Description

Lot Dimensions: 50x110 SqFt - Living: 2258 SqFt - Source: Measured SqFt - Total: 2652 Acreage Range: 0 - 0.5 # Bedrooms: 4 Baths - Full: 3 Total Baths: 3 Year Built: 1929

Remarks & Misc

Remarks: Welcome to 411 Claiborne Court, a charming raised camelback home in the desirable Old Jefferson neighborhood. This inviting residence offers 4 bedrooms, 3 bathrooms, and 2,258 square feet of living space, blending classic character with modern updates. Relax on the welcoming front porch, overlooking landscaped gardens and enjoying the peaceful sounds of nature. Inside, solid oak flooring flows throughout the living areas, dining room, bedrooms, and hallways, creating warmth and continuity. The open living and dining area is designed for entertaining, while the custom kitchen provides a functional and stylish space for everyday cooking. Bathrooms were renovated in 2024-2025, adding fresh, updated finishes. The primary bedroom upstairs offers privacy and includes an adjoining office or craft room plus additional storage. A light-filled sunroom opens to the landscaped backyard and covered patio, a spot for relaxing or hosting guests. Professionally designed landscaping features irrigation and lighting to highlight the trees and gardens with minimal maintenance. Including with the home, is a Generac whole house generator which gives you peace of mind when the power goes out. Property is located in flood zone "X". Conveniently located by the Mississippi River, Ochsner Hospital, and with easy access to New Orleans, Metairie, and the West Bank via the Huey P. Long Bridge, this home also offers close proximity to the levee walking path and outdoor activity options. Window treatments & rods in living, dining, primary & rear bedroom are excluded.

Office/Member/Contract Info

List AOR: NOMAR

Siding

Hardiplank: 1 Vinyl Siding: 1

Parking

Garage: 1

Equipment

Generator: 1

Foundation

Piers: 1

Patio

Covered: 1

Roof

Other: 1

Heating

Central: 1 Natural Gas: 1

Cooling

Central Air: 1

Utilities

Elec: Entergy: 1

Rooms

Bedroom 1: 1 Dining Room: 1 Kitchen: 1 Living Room: 1 Primary Bedroom: 1 Office: 1 Other: 1 Bedroom 2: 1 Bedroom 3: 1 Bedroom 4: 1 Bedroom 5: 1 Bedroom 6: 1

Fencing

Chain Link: 1 Wood: 1 Other: 1

Originating Details

Originating System ID: ROAMM Originating System Key: 56826863 Originating System Listing ID: 2539987 Originating System Name: ROAM Matrix

Location Tax Legal Info

Street Number: 411 Street Name: CLAIBORNE Court Parish: Jefferson State: LA Zip Code: 70121 Tax Assessment Number: 0700004363 Directions: From Jefferson Highway, turn on to Claiborne Ct., House is on the left Bounding Streets: Jefferson Hwy., Sundorn, Shrewsbury Rd., Shrewsbury Ct

Property Features

Siding: Hardiplank; Vinyl Siding Parking: Garage Foundation: Piers Roof: Other Heating: Central; Natural Gas Cooling: Central Air Rooms: Bedroom 1; Dining Room; Kitchen; Living Room; Office; Other; Primary Bedroom; Bedroom 2; Bedroom 3; Bedroom 4; Bedroom 5; Bedroom 6 Equipment: Generator Fencing: Chain Link; Wood; Other Patio: Covered Utilities: Elec: Entergy

Room Information

Other Length: 10.80 Width: 5.00 Remarks: Storage Attached Other Length: 10.80 Width: 5.00 Remarks: Storage Attached Bedroom 1 Length: 15.00 Width: 11.20 Remarks: Bedroom Living Room Length: 12.40 Width: 15.60 Remarks: Living Room Living Room Length: 12.40 Width: 15.60 Remarks: Living Room Office Length: 17.00 Width: 9.30 Remarks: Study Office Length: 17.00 Width: 9.30 Remarks: Study Bedroom 2 Length: 11.20 Width: 14.50 Remarks: Bedroom Primary Bedroom Length: 15.60 Width: 13.70 Remarks: Primary Bedroom Primary Bedroom Length: 15.60 Width: 13.70 Remarks: Primary Bedroom Dining Room Length: 12.40 Width: 11.60 Remarks: Dining Room Dining Room Length: 12.40 Width: 11.60 Remarks: Dining Room Kitchen Length: 11.70 Width: 11.20 Remarks: Kitchen Kitchen Length: 11.70 Width: 11.20 Remarks: Kitchen Bedroom 3 Length: 11.30 Width: 19.20 Remarks: Bedroom Bedroom 4 Length: 11.30 Width: 19.20 Remarks: Bedroom Bedroom 5 Length: 11.20 Width: 14.50 Remarks: Bedroom Bedroom 6 Length: 15.00 Width: 11.20 Remarks: Bedroom
Listing Office: United Real Estate Partners LLC
IDX
Last Updated: February - 04 - 2026
The data relating to real estate for sale or lease on this website comes in part from the IDX program of the REALTOR® Association of Acadiana MLS. The IDX information is provided exclusively for consumers’ personal, non-commericial use and may not be used for any purpose other than to identify prospective properties consumers may be interested in purchasing. Data is deemed reliable but is not guaranteed accurate by the MLS.