401 PELICAN Avenue, New Orleans, LA 70114 (MLS# NO2537517)

401 PELICAN Avenue, New Orleans, LA 70114

$610,000
Property Type: Residential Bedrooms: 4 Baths: 4 Square Footage: 3,159 Status: Pending
Current Price: $610,000 List Date: 1/10/2026 Last Modified: 1/30/2026

Description

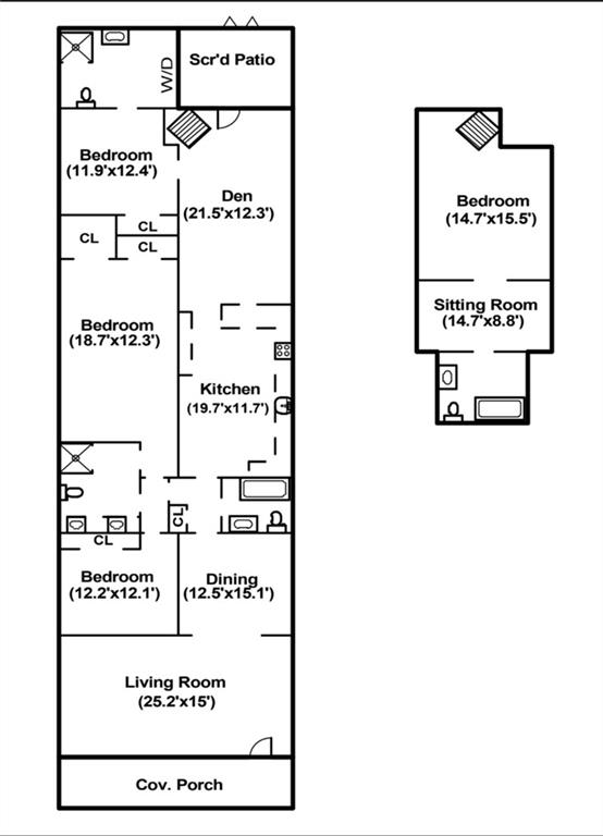
Charming Historic Home in the Heart of Algiers Point Nestled in the vibrant and walkable community of Algiers Point, this beautifully maintained historic residence offers the perfect blend of timeless character and modern comfort. Ideally located just three blocks from the Canal St./Algiers Ferry and minutes from the Crescent City Connection, you'll enjoy quick access to downtown New Orleans, nearby Gretna, and an array of local restaurants, bars, and boutique shops--all within walking or biking distance. This spacious home features 12-foot soaring ceilings, picture and crown mouldings, massive historic windows, decorative mantels, ceiling medallions, custom cabinetry with cypress wood and glass cupboards, four generously sized bedrooms, and four full bathrooms--making it ideal for families, entertainers, or those in need of flexible living space. Classic slate in the kitchen and real wood flooring add warmth and charm, while thoughtful updates ensure effortless living. The layout is designed with entertaining in mind, featuring a large front sitting porch, a grand parlor/living room upon entry, a formal dining room with archway, and a large den that opens to the kitchen--a perfect hub for gatherings. Extend your living outdoors with a screened back porch overlooking a generous backyard, ideal for hosting or relaxing in a private, serene setting. The fourth bedroom, sitting area, closet, and fourth bath are located on the second floor in 536 square feet of bonus space not included in the gross living area. Romantic gardens along the sidewalk and front yard feature a beautiful mature fig tree, manicured green spaces, and clawfoot tub garden beds along the property. A rare opportunity to own a piece of New Orleans history in one of its most beloved neighborhoods--this home is the total package: charm, location, and modern livability.

Supplements: ********

More Information MLS# NO2537517

Listing Info

Delayed Marketing: No List Price/SqFt: 263.04 Document Modified: 2026-01-30 14:41:59.321814 Status: Pending Listing Date: 2026-01-10 Listing Price: 610000 Current Price: $610,000 Type: Single Family Residence Modification Timestamp: 2026-01-30T20:47:08Z Photo Modified: 2026-01-30T20:47:08Z

General Property Description

Lot Dimensions: 32 x 128 Stories: 2 SqFt - Living: 2319 SqFt - Source: Appraiser SqFt - Total: 3159 Acreage Range: 0 - 0.5 Pool on Subject Property: No # Bedrooms: 4 Baths - Full: 4 Total Baths: 4 Year Built: 1882

Remarks & Misc

Remarks: Charming Historic Home in the Heart of Algiers Point Nestled in the vibrant and walkable community of Algiers Point, this beautifully maintained historic residence offers the perfect blend of timeless character and modern comfort. Ideally located just three blocks from the Canal St./Algiers Ferry and minutes from the Crescent City Connection, you'll enjoy quick access to downtown New Orleans, nearby Gretna, and an array of local restaurants, bars, and boutique shops--all within walking or biking distance. This spacious home features 12-foot soaring ceilings, picture and crown mouldings, massive historic windows, decorative mantels, ceiling medallions, custom cabinetry with cypress wood and glass cupboards, four generously sized bedrooms, and four full bathrooms--making it ideal for families, entertainers, or those in need of flexible living space. Classic slate in the kitchen and real wood flooring add warmth and charm, while thoughtful updates ensure effortless living. The layout is designed with entertaining in mind, featuring a large front sitting porch, a grand parlor/living room upon entry, a formal dining room with archway, and a large den that opens to the kitchen--a perfect hub for gatherings. Extend your living outdoors with a screened back porch overlooking a generous backyard, ideal for hosting or relaxing in a private, serene setting. The fourth bedroom, sitting area, closet, and fourth bath are located on the second floor in 536 square feet of bonus space not included in the gross living area. Romantic gardens along the sidewalk and front yard feature a beautiful mature fig tree, manicured green spaces, and clawfoot tub garden beds along the property. A rare opportunity to own a piece of New Orleans history in one of its most beloved neighborhoods--this home is the total package: charm, location, and modern livability.

Office/Member/Contract Info

List AOR: NOMAR

Style

Traditional: 1

Siding

Wood: 1

Parking

No Parking: 1

Foundation

Piers: 1

Roof

Composition: 1

Heating

Central: 1

Interior

Attic Access: 1

Cooling

2 or More Units: 1 Central Air: 1

Appliances

Dishwasher: 1 Microwave: 1 Refrigerator: 1

Utilities

Elec: Entergy: 1

Countertops

Granite: 1

Rooms

Bedroom 1: 1 Den: 1 Dining Room: 1 Kitchen: 1 Living Room: 1 Primary Bedroom: 1 Bedroom 2: 1 Bedroom 3: 1 Bedroom 4: 1 Bedroom 5: 1 Bedroom 6: 1 Bedroom 7: 1 Bedroom 8: 1

Other Structures

Workshop: 1

Originating Details

Originating System ID: ROAMM Originating System Key: 56653865 Originating System Listing ID: 2537517 Originating System Name: ROAM Matrix

Location Tax Legal Info

Street Number: 401 Street Name: PELICAN Avenue Parish: Orleans State: LA Zip Code: 70114 Tax Assessment Number: 513101801 Directions: Bounding Streets: Bermuda, Alix, Verret

Status Change Info

Under Contract Date: 2026-01-15

Property Features

Style: Traditional Siding: Wood Parking: No Parking Foundation: Piers Roof: Composition Interior: Attic Access Heating: Central Cooling: 2 or More Units; Central Air Appliances: Dishwasher; Microwave; Refrigerator Countertops: Granite Rooms: Bedroom 1; Den; Dining Room; Kitchen; Living Room; Primary Bedroom; Bedroom 2; Bedroom 3; Bedroom 4; Bedroom 5; Bedroom 6; Bedroom 7; Bedroom 8 Other Structures: Workshop Utilities: Elec: Entergy

Room Information

Bedroom 1 Length: 15.00 Width: 9.00 Remarks: Bedroom Living Room Length: 25.00 Width: 15.00 Remarks: Living Room Living Room Length: 25.00 Width: 15.00 Remarks: Living Room Living Room Length: 25.00 Width: 15.00 Remarks: Living Room Living Room Length: 25.00 Width: 15.00 Remarks: Living Room Living Room Length: 25.00 Width: 15.00 Remarks: Living Room Dining Room Length: 15.00 Width: 12.00 Remarks: Dining Room Dining Room Length: 15.00 Width: 12.00 Remarks: Dining Room Dining Room Length: 15.00 Width: 12.00 Remarks: Dining Room Dining Room Length: 15.00 Width: 12.00 Remarks: Dining Room Dining Room Length: 15.00 Width: 12.00 Remarks: Dining Room Bedroom 2 Length: 15.00 Width: 9.00 Remarks: Bedroom Bedroom 3 Length: 12.00 Width: 12.00 Remarks: Bedroom Den Length: 21.00 Width: 12.00 Remarks: Den Den Length: 21.00 Width: 12.00 Remarks: Den Den Length: 21.00 Width: 12.00 Remarks: Den Den Length: 21.00 Width: 12.00 Remarks: Den Den Length: 21.00 Width: 12.00 Remarks: Den Kitchen Length: 19.00 Width: 11.00 Remarks: Kitchen Kitchen Length: 19.00 Width: 11.00 Remarks: Kitchen Kitchen Length: 19.00 Width: 11.00 Remarks: Kitchen Kitchen Length: 19.00 Width: 11.00 Remarks: Kitchen Kitchen Length: 19.00 Width: 11.00 Remarks: Kitchen Bedroom 4 Length: 12.00 Width: 12.00 Remarks: Bedroom Bedroom 5 Length: 12.00 Width: 11.00 Remarks: Bedroom Bedroom 6 Length: 12.00 Width: 11.00 Remarks: Bedroom Bedroom 7 Length: 15.00 Width: 9.00 Remarks: Bedroom Primary Bedroom Length: 18.00 Width: 12.00 Remarks: Primary Bedroom Primary Bedroom Length: 18.00 Width: 12.00 Remarks: Primary Bedroom Primary Bedroom Length: 18.00 Width: 12.00 Remarks: Primary Bedroom Primary Bedroom Length: 18.00 Width: 12.00 Remarks: Primary Bedroom Primary Bedroom Length: 18.00 Width: 12.00 Remarks: Primary Bedroom Bedroom 8 Length: 15.00 Width: 9.00 Remarks: Bedroom
Listing Office: RE/MAX N.O. Properties
IDX
Last Updated: January - 30 - 2026
The data relating to real estate for sale or lease on this website comes in part from the IDX program of the REALTOR® Association of Acadiana MLS. The IDX information is provided exclusively for consumers’ personal, non-commericial use and may not be used for any purpose other than to identify prospective properties consumers may be interested in purchasing. Data is deemed reliable but is not guaranteed accurate by the MLS.