3914 PRYTANIA Street, New Orleans, LA 70115
$1,750,000
Property Type:
Residential
Bedrooms:
4
Baths:
3.1
Square Footage:
7,999
Status:
Pending
Current Price:
$1,750,000
List Date:
11/03/2025
Last Modified:
4/29/2026
Overview
Description
...
(Read more)
Rare Uptown double lot extending from Prytania Street to Perrier Street, Zoned HU-RM1, featuring two separate structures and built-in income. A historic main residence fronts Prytania, while another completely separate secondary flex-use building fronts Perrier, offering a rare opportunity for owner-occupancy with steady rental income already in place. The main house, built circa 1890-1900, offers 3,947 sq ft of historic character with original oak floors, gas lanterns, recessed lighting, five chandeliers, two HVAC units, and dual gated parking for at least four vehicles. Recent improvements include a unified steel roof with lifetime transferable warranty, electrical and plumbing updates, new water heater, Hardie board siding, fresh exterior paint, and additional interior updates. The rear 4,052 sq ft structure has housed an established daycare since 1971 and has been exceptionally maintained. The owner prefers to arrange leaseback of the secondary structure, offering the next owner immediate rental income on a truly rare flex-use property. Located in an X Flood Zone, and Zoned HU-RM1 with permitted residential, daycare, and select neighborhood commercial or institutional uses. Prime Uptown location two blocks off St. Charles Avenue, steps to Magazine Street retail, restaurants, and nearby medical facilities.
Listing Details MLS# NO2527826
Listing Info
- Delayed Marketing
- No
- Listing Price
- 1750000
- List Price/SqFt
- 443.37
- Type
- Single Family Residence
- Document Modified
- 2026-04-29 15:06:47.495283
- Modification Timestamp
- 2026-04-29T20:07:22Z
- Photo Modified
- 2026-02-19T17:24:13Z
Location Tax Legal Info
- Street Number
- 3914
- Street Name
- PRYTANIA Street
- Parish
- Orleans
- State
- LA
- Zip Code
- 70115
- Tax Assessment Number
- 614222905
- Directions
- Bounding Streets: Constantinople, Gen Taylor, Perrier
General Property Description
- # Bedrooms
- 4
- Baths - Full
- 3
- Baths - 1/2
- Yes
- Total Baths
- 3.1
- SqFt - Living
- 3947
- SqFt - Total
- 7999
- SqFt - Source
- Appraiser
- Stories
- 2
- Year Built
- 1895
- Acreage Range
- 0 - 0.5
- Lot Dimensions
- 82 x 73 x 200
- Pool on Subject Property
- No
Status Change Info
- Under Contract Date
- 2026-04-24
Originating Details
- Originating System ID
- ROAMM
- Originating System Key
- 52852967
- Originating System Listing ID
- 2527826
- Originating System Name
- ROAM Matrix
Location, Tax & Legal Info
- Legal Desc
- SQ 336 LOTS 10 11 19 20 REAR LOTS 12 18 82/73X200 2009-NR LOTS 12 18 82/73X200 PRYTANIA TO PERRIER S-2/STY W/LARGE BLDG IN RR FILE
More Information
Remarks & Misc
- Remarks
- Rare Uptown double lot extending from Prytania Street to Perrier Street, Zoned HU-RM1, featuring two separate structures and built-in income. A historic main residence fronts Prytania, while another completely separate secondary flex-use building fronts Perrier, offering a rare opportunity for owner-occupancy with steady rental income already in place. The main house, built circa 1890-1900, offers 3,947 sq ft of historic character with original oak floors, gas lanterns, recessed lighting, five chandeliers, two HVAC units, and dual gated parking for at least four vehicles. Recent improvements include a unified steel roof with lifetime transferable warranty, electrical and plumbing updates, new water heater, Hardie board siding, fresh exterior paint, and additional interior updates. The rear 4,052 sq ft structure has housed an established daycare since 1971 and has been exceptionally maintained. The owner prefers to arrange leaseback of the secondary structure, offering the next owner immediate rental income on a truly rare flex-use property. Located in an X Flood Zone, and Zoned HU-RM1 with permitted residential, daycare, and select neighborhood commercial or institutional uses. Prime Uptown location two blocks off St. Charles Avenue, steps to Magazine Street retail, restaurants, and nearby medical facilities.
Office/Member/Contract Info
- List AOR
- NOMAR
Style
- Victorian
- Yes
Siding
- Wood
- Yes
Construction
- Other
- Yes
Foundation
- Piers
- Yes
Exterior
- Balcony
- Yes
Fireplace
- Other
- Yes
Roof
- Other
- Yes
Heating
- Central
- Yes
Interior
- Attic Access
- Yes
Cooling
- 2 or More Units
- Yes
- Central Air
- Yes
Appliances
- Dishwasher
- Yes
- Dryer
- Yes
- Microwave
- Yes
- Refrigerator
- Yes
- Washer
- Yes
Utilities
- Elec: Entergy
- Yes
Countertops
- Granite
- Yes
Rooms
- Bathroom 1
- Yes
- Bedroom 1
- Yes
- Den
- Yes
- Dining Room
- Yes
- Kitchen
- Yes
- Laundry
- Yes
- Living Room
- Yes
- Primary Bathroom
- Yes
- Primary Bedroom
- Yes
- Other
- Yes
- Bedroom 2
- Yes
- Bedroom 3
- Yes
- Bedroom 4
- Yes
- Bedroom 5
- Yes
- Bathroom 2
- Yes
- Bathroom 3
- Yes
- Bathroom 4
- Yes
- Bathroom 5
- Yes
- Bedroom 6
- Yes
Fencing
- Wood
- Yes
- Other
- Yes
Property Features
Style:
Victorian
Siding:
Wood
Construction:
Other
Foundation:
Piers
Roof:
Other
Interior:
Attic Access
Fireplace:
Other
Heating:
Central
Cooling:
2 or More Units; Central Air
Appliances:
Dishwasher; Dryer; Microwave; Refrigerator; Washer
Countertops:
Granite
Rooms:
Bathroom 1; Bedroom 1; Den; Dining Room; Kitchen; Laundry; Living Room; Other; Primary Bathroom; Primary Bedroom; Bedroom 2; Bedroom 3; Bedroom 4; Bedroom 5; Bathroom 2; Bathroom 3; Bathroom 4; Bathroom 5; Bedroom 6
Fencing:
Wood; Other
Exterior:
Balcony
Utilities:
Elec: Entergy
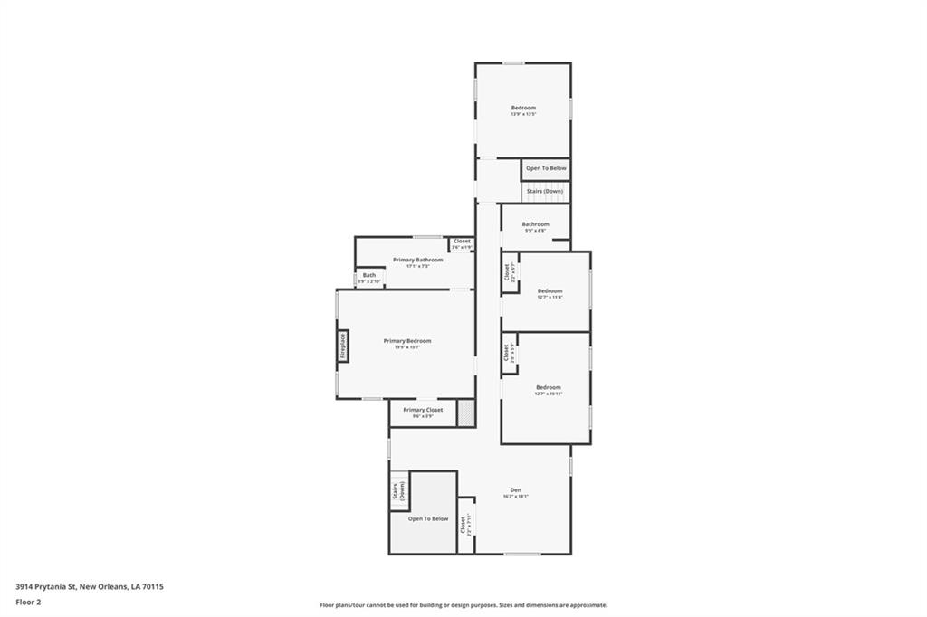
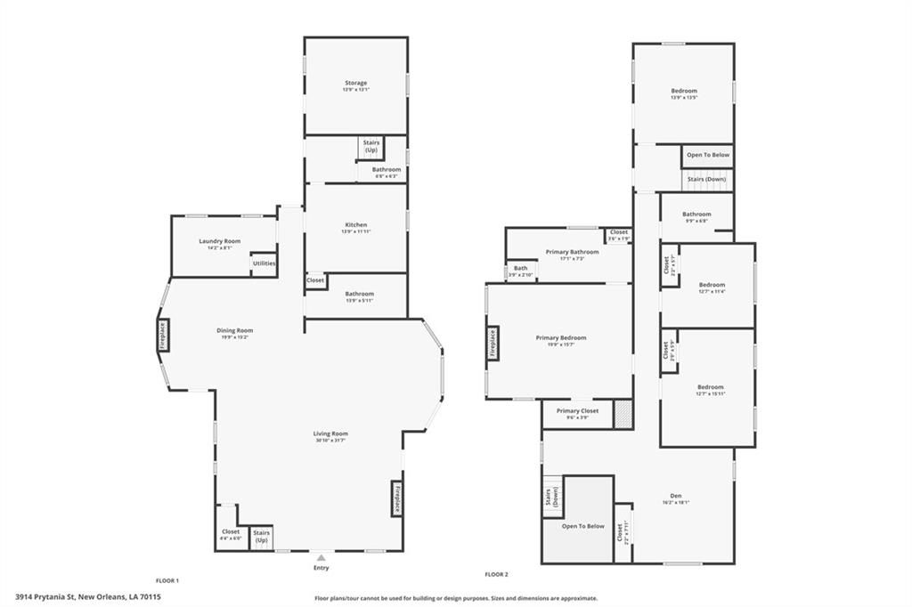
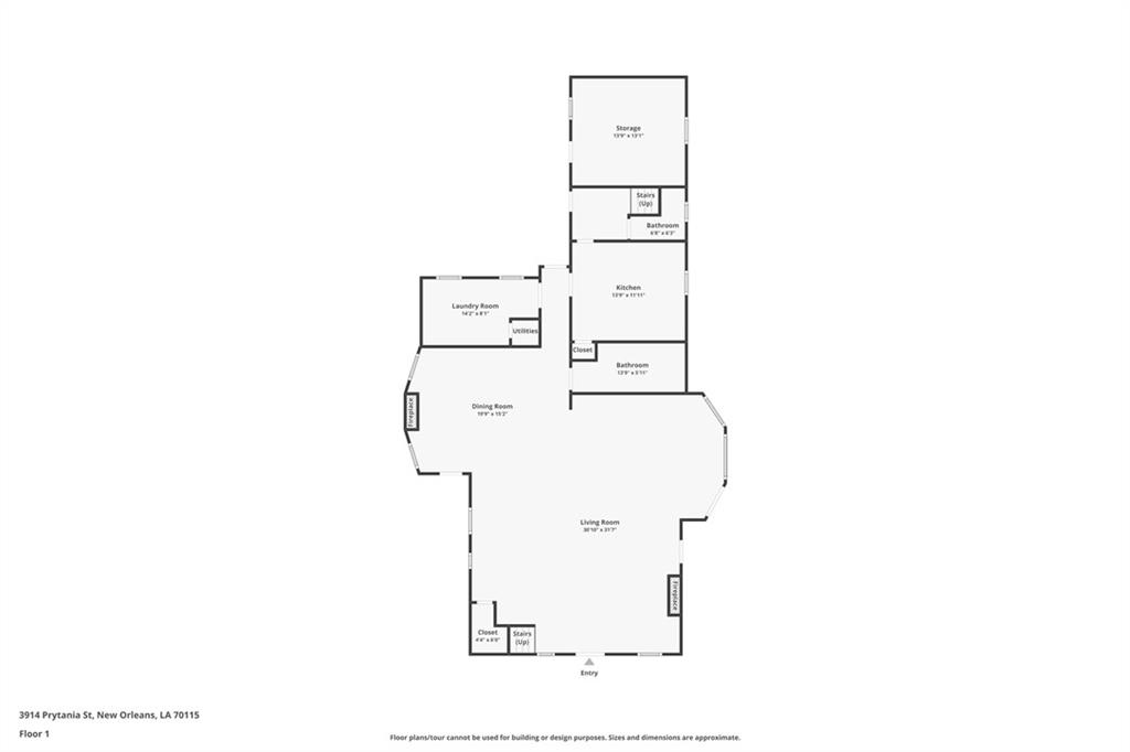
Room Information
| Room Name | Length | Width | Remarks |
|---|---|---|---|
| Primary Bathroom | 17.00 | 7.00 | Primary Bathroom |
| Primary Bathroom | 17.00 | 7.00 | Primary Bathroom |
| Primary Bedroom | 20.00 | 18.00 | Primary Bedroom |
| Primary Bedroom | 20.00 | 18.00 | Primary Bedroom |
| Bathroom 1 | 7.00 | 6.00 | Half Bath |
| Bedroom 1 | 13.00 | 11.00 | Bedroom |
| Living Room | 31.00 | 32.00 | Living Room |
| Living Room | 31.00 | 32.00 | Living Room |
| Bathroom 2 | 10.00 | 7.00 | Bathroom |
| Bedroom 2 | 13.00 | 11.00 | Bedroom |
| Bedroom 3 | 14.00 | 14.00 | Bedroom |
| Dining Room | 20.00 | 15.00 | Dining Room |
| Dining Room | 20.00 | 15.00 | Dining Room |
| Other | 14.00 | 13.00 | Storage Attached |
| Other | 14.00 | 13.00 | Storage Attached |
| Bathroom 3 | 13.00 | 6.00 | Bathroom |
| Bedroom 4 | 14.00 | 14.00 | Bedroom |
| Kitchen | 14.00 | 12.00 | Kitchen |
| Kitchen | 14.00 | 12.00 | Kitchen |
| Bathroom 4 | 13.00 | 6.00 | Bathroom |
| Laundry | 14.00 | 8.00 | Laundry |
| Laundry | 14.00 | 8.00 | Laundry |
| Den | 16.00 | 18.00 | Den |
| Den | 16.00 | 18.00 | Den |
| Bathroom 5 | 10.00 | 7.00 | Bathroom |
| Bedroom 5 | 13.00 | 16.00 | Bedroom |
| Bedroom 6 | 13.00 | 16.00 | Bedroom |
Documents
IDX
Listing Office:
Berkshire Hathaway HomeServices Preferred, REALTOR
Last Updated: April - 29 - 2026
The data relating to real estate for sale or lease on this website comes in part from the IDX program of the REALTOR® Association of Acadiana MLS. The IDX information is provided exclusively for consumers’ personal, non-commericial use and may not be used for any purpose other than to identify prospective properties consumers may be interested in purchasing. Data is deemed reliable but is not guaranteed accurate by the MLS.

Prop Disclosures, LBP, As Is Waiver of W ›