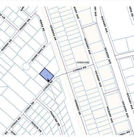
334 CITRUS Road, River Ridge, LA 70123
New Listing
$650,000
Property Type:
Land
Status:
Active
Current Price:
$650,000
List Date:
4/20/2026
Last Modified:
4/20/2026
Description
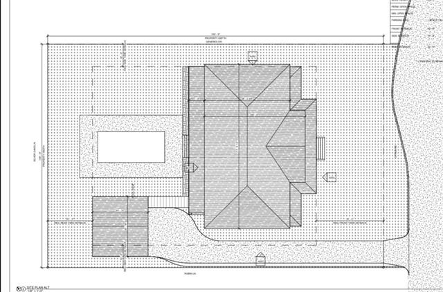
Prime opportunity to build your new home on this spacious lot covering 100 X 150. This gorgeous plot of land rests where River Ridge begins to shine! Welcome to 334 Citrus - this over-sized lot currently has a home ripe for demolition. Knock it down and build your dream home. This plot of land also has the option to build, plans available from RHE builders in concert with Adamick Architecture to build on site - inquire for details
Supplements: ********
More Information MLS# NO2553935
Listing Info
Delayed Marketing: No
Document Modified: 2026-04-20 14:30:50.865172
Status: Active
Listing Date: 2026-04-20
Listing Price: 650000
Current Price: $650,000
Modification Timestamp: 2026-04-20T22:33:33Z
Photo Modified: 2026-04-20T19:50:32Z
Location, Tax & Legal Info
Legal Desc: LOT B SQ H HIGHLAND ACRES
General Property Description
Lot Dimensions: 150.00 x 150.00 x 100.00 x 100.00
St Front (Ft): 150
Mobile Allowed: No
Divisible: No
Acreage Range: 0 - 0.5
Remarks & Misc
Remarks: Prime opportunity to build your new home on this spacious lot covering 100 X 150. This gorgeous plot of land rests where River Ridge begins to shine! Welcome to 334 Citrus - this over-sized lot currently has a home ripe for demolition. Knock it down and build your dream home. This plot of land also has the option to build, plans available from RHE builders in concert with Adamick Architecture to build on site - inquire for details
Office/Member/Contract Info
List AOR: NOMAR
Land Type
Residential: 1
Potential Use
Single Family: 1
Utilities
Electricity Available: 1
Natural Gas Available: 1
Telephone: 1
Fencing
Wood: 1
Originating Details
Originating System ID: ROAMM
Originating System Key: 57830264
Originating System Listing ID: 2553935
Originating System Name: ROAM Matrix
Location Tax Legal Info
Street Number: 334
Street Name: CITRUS Road
Parish: Jefferson
State: LA
Zip Code: 70123
Tax Assessment Number: 0910007142
Zone: RD1
Directions: Dickory to Citrus Bounding Streets: Generes & Francine
Property Features
Land Type: Residential
Potential Use: Single Family
Utilities: Electricity Available; Natural Gas Available; Telephone
Fencing: Wood
Documents
Listing Office:
FQR Realtors
IDX
Last Updated: April - 20 - 2026
The data relating to real estate for sale or lease on this website comes in part from the IDX program of the REALTOR® Association of Acadiana MLS. The IDX information is provided exclusively for consumers’ personal, non-commericial use and may not be used for any purpose other than to identify prospective properties consumers may be interested in purchasing. Data is deemed reliable but is not guaranteed accurate by the MLS.

wow ›