3313-15 ST CLAUDE Avenue, New Orleans, LA 70117
$350,000
Property Type:
MultiFamily
Square Footage:
1,850
Status:
Active
Current Price:
$350,000
List Date:
3/24/2026
Last Modified:
3/24/2026
Description
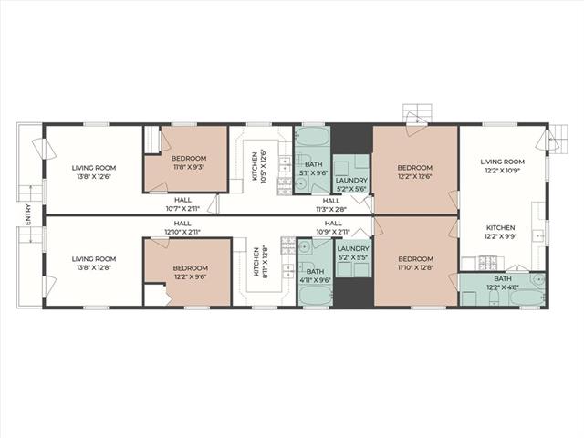
Commercially Zoned Historic Bywater Tri-Plex w/ a New Roof and Freshly Painted Exterior. All the best of the Bywater/Marigny/French Quarter just outside your door. Tall ceilings, hardwood floors, and historic charm throughout. Flexible setup that could easily function as a single-family-home, duplex or triplex. All bedrooms are separate (not a shotgun!). Commercial HMC-2 zoning allows for a multitude of money-making uses. Large backyard. Property is fully tenant occupied (24+ hour notice needed to show) and tenants pay their own utilities.
Supplements: ********
More Information MLS# NO2549151
Listing Info
Delayed Marketing: No
List Price/SqFt: 189.19
Document Modified: 2026-03-24 15:38:21.145777
Status: Active
Listing Date: 2026-03-24
Listing Price: 350000
Current Price: $350,000
Type: Triplex
Modification Timestamp: 2026-03-24T23:51:05Z
Photo Modified: 2026-03-24T20:38:28Z
Location, Tax & Legal Info
Legal Desc: 1. SQ 404 LOT 4 ST.CLAUDE 2. 30X117 W/FR 12/RMS S/R 3. DBLE 3313-15 ST.CLAUDE AVE
General Property Description
Lot Dimensions: 30' x 117'
Stories: 1
SqFt - Total: 1850
SqFt - Source: Measured
Individual Metered?: Yes
Number of Units: 3
Remarks & Misc
Remarks: Commercially Zoned Historic Bywater Tri-Plex w/ a New Roof and Freshly Painted Exterior. All the best of the Bywater/Marigny/French Quarter just outside your door. Tall ceilings, hardwood floors, and historic charm throughout. Flexible setup that could easily function as a single-family-home, duplex or triplex. All bedrooms are separate (not a shotgun!). Commercial HMC-2 zoning allows for a multitude of money-making uses. Large backyard. Property is fully tenant occupied (24+ hour notice needed to show) and tenants pay their own utilities.
Office/Member/Contract Info
List AOR: NOMAR
Currently Not Used
Acreage Range: 0 - 0.5
Siding
Wood: 1
Parking
No Parking: 1
Construction
Frame: 1
Foundation
Piers: 1
Patio
Porch: 1
Roof
Composition: 1
Heating
Central: 1
Cooling
Central Air: 1
Fencing
Other: 1
Tenant Pays
Electric: 1
Gas: 1
Water: 1
Originating Details
Originating System ID: ROAMM
Originating System Key: 57489510
Originating System Listing ID: 2549151
Originating System Name: ROAM Matrix
Location Tax Legal Info
Street Number: 3313-15
Street Name: ST CLAUDE Avenue
Parish: Orleans
State: LA
Zip Code: 70117
Tax Assessment Number: 3315-STCLAUDEAV
Directions: Map apps work great. Bounding Streets: Piety, Marais, Desire
Property Features
Siding: Wood
Parking: No Parking
Construction: Frame
Foundation: Piers
Roof: Composition
Heating: Central
Cooling: Central Air
Fencing: Other
Tenant Pays: Electric; Gas; Water
Listing Office:
FQR Realtors
IDX
Last Updated: March - 24 - 2026
The data relating to real estate for sale or lease on this website comes in part from the IDX program of the REALTOR® Association of Acadiana MLS. The IDX information is provided exclusively for consumers’ personal, non-commericial use and may not be used for any purpose other than to identify prospective properties consumers may be interested in purchasing. Data is deemed reliable but is not guaranteed accurate by the MLS.

3313 St. Claude Ave ~ Property Disclosur ›