2800 S MACARTHUR Drive, E, Alexandria, LA 71301
$4,000
Property Type:
Commercial Lease
Square Footage:
4,731
Lot Size (sq. ft.):
580,219
Status:
Active
Current Price:
$4,000
List Date:
4/10/2025
Last Modified:
4/01/2026
Description
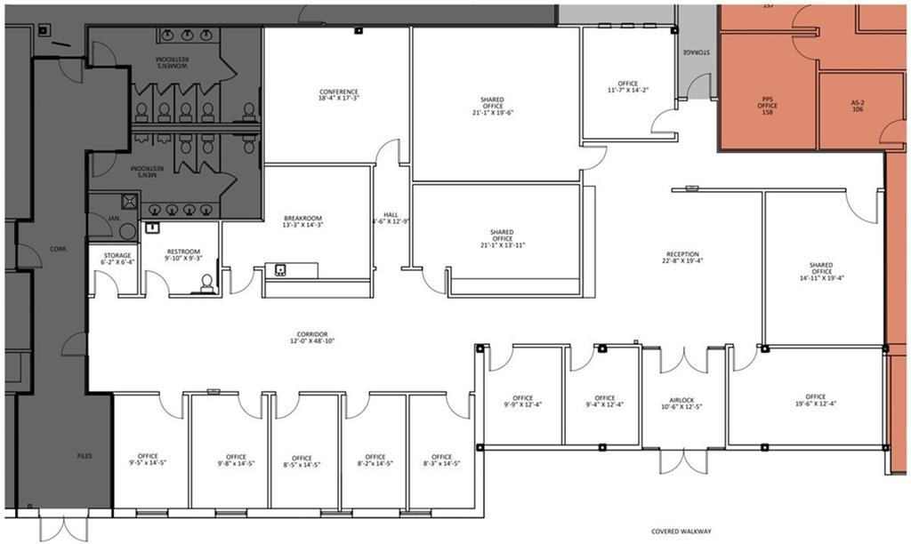
1st Month Rent Free! This beautifully updated and spacious 4,731 SF professional office ideally located on the main commercial artery of Alexandria in a prime location that offers exceptional visibility and convenience with close proximity to the Alexandria Mall, restaurants, major retail stores, and grocery outlets. Formerly a medical office, this flexible space is well-suited for a wide range of professional or business uses. The layout features 12 total offices - including 9 private offices and 3 oversized offices that can be shared or kept private, a welcoming reception area, dedicated conference room, comfortable breakroom, a private restroom and more than abundant parking. The unit has been freshly painted, creating a clean, professional atmosphere for your team and clients. Don't miss out on this fantastic opportunity for premium office space in one of Alexandria's most high-traffic areas.
Supplements: ********
More Information MLS# CN2496075
Listing Info
Delayed Marketing: No
For Lease: Yes
List Price/SqFt: 0.85
Date Available: 2025-04-10
Document Modified: 2026-03-31 23:09:15.278824
Status: Active
Listing Date: 2025-04-10
Listing Price: 4000
Current Price: $4,000
Modification Timestamp: 2026-04-01T04:09:36Z
Photo Modified: 2026-04-01T04:04:11Z
General Property Description
Stories: 1
SqFt - Total: 4731
SqFt - Source: Measured
Acreage Range: 11 - 19.99
SqFt - Office: 4731
Acres: 13.32
Sale/Lease Info
Deposit: 4000
Remarks & Misc
Remarks: 1st Month Rent Free! This beautifully updated and spacious 4,731 SF professional office ideally located on the main commercial artery of Alexandria in a prime location that offers exceptional visibility and convenience with close proximity to the Alexandria Mall, restaurants, major retail stores, and grocery outlets. Formerly a medical office, this flexible space is well-suited for a wide range of professional or business uses. The layout features 12 total offices - including 9 private offices and 3 oversized offices that can be shared or kept private, a welcoming reception area, dedicated conference room, comfortable breakroom, a private restroom and more than abundant parking. The unit has been freshly painted, creating a clean, professional atmosphere for your team and clients. Don't miss out on this fantastic opportunity for premium office space in one of Alexandria's most high-traffic areas.
Office/Member/Contract Info
List AOR: NOMAR
Property Type
Professional/Office: 1
Parking
Parking Lot: 1
Construction
Block: 1
Features
Handicap Design: 1
Foundation
Slab: 1
Heating
Central: 1
Cooling
Central Air: 1
Originating Details
Originating System ID: ROAMM
Originating System Key: 50824588
Originating System Listing ID: 2496075
Originating System Name: ROAM Matrix
Location Tax Legal Info
Street Number: 2800
Dir: S
Street Name: MACARTHUR Drive
Unit #: E
Parish: Rapides
State: LA
Zip Code: 71301
Area: 100 Rapides, Alex Side
Tax Assessment Number: 1010892326
Zone: C-2
Directions: South on S. Macarthur Dr. Service Road from Masonic. Turn Right on North Blvd., Building is on the left just past Fairfield Inn & Suites Bounding Streets: S MacArthur Service Rd and North Blvd
Property Features
Property Type: Professional/Office
Features: Handicap Design
Heating: Central
Cooling: Central Air
Construction: Block
Parking: Parking Lot
Foundation: Slab
Documents
Listing Office:
LATTER AND BLUM Central Realty LLC
IDX
Last Updated: April - 01 - 2026
The data relating to real estate for sale or lease on this website comes in part from the IDX program of the REALTOR® Association of Acadiana MLS. The IDX information is provided exclusively for consumers’ personal, non-commericial use and may not be used for any purpose other than to identify prospective properties consumers may be interested in purchasing. Data is deemed reliable but is not guaranteed accurate by the MLS.

Floor Plan ›