2525-27 MARENGO Street, New Orleans, LA 70115 (MLS# NO2529134)

2525-27 MARENGO Street, New Orleans, LA 70115

$550,000
Property Type: MultiFamily Square Footage: 2,991 Status: Active
Current Price: $550,000 List Date: 11/03/2025 Last Modified: 1/30/2026

Description

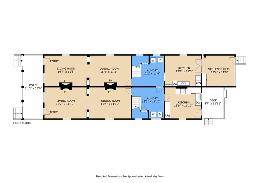
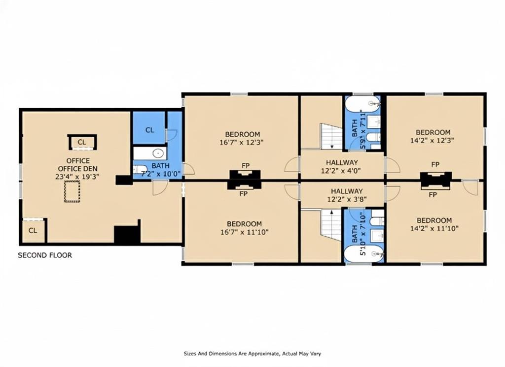
This Neoclassical Revival camelback double is an architectural gem meticulously preserved through time. Inside, 12-foot ceilings and original millwork define the space, exuding elegance. This is further enhanced by stunning wood floors and meticulously preserved features like original mantles, double sash windows, and solid plaster walls. Located just three blocks from lively Freret Street, you'll enjoy easy access to renowned restaurants, local coffee shops, vibrant festivals, and neighborhood markets. The home welcomes you with traditional double parlors, which include spacious living and dining rooms. These flow seamlessly into large laundry rooms and rear kitchens that open onto a screened-in porch or covered deck. This leads to a delightful rear yard, perfect for outdoor entertaining or peaceful relaxation, with convenient access to the garage and workshop. Upstairs, each unit features two independent bedrooms and full bathrooms with classic clawfoot tubs. The owner's unit includes a finished attic, currently used as an office or den with a half bathroom. The layout is wonderfully flexible with internal door access, easily converting the owner's side to a three bedroom unit and the second unit to a one bedroom. This truly offers incredible potential! The expansive 45-foot wide by 111-foot long lot is a major asset, featuring a long driveway with room for multiple cars, trailers, boats, or even an RV. This leads to a dedicated garage and workshop, providing ample space for storage or creative endeavors. Don't miss the opportunity to own this remarkable home!

Supplements: ********

More Information MLS# NO2529134

Listing Info

Delayed Marketing: No List Price/SqFt: 183.88 Status: Active Listing Date: 2025-11-03 Listing Price: 550000 Current Price: $550,000 Type: Duplex Modification Timestamp: 2026-01-30T20:11:30Z Photo Modified: 2026-01-30T20:11:30Z

Location, Tax & Legal Info

Legal Desc: 1. SQ 599 LOT 7 HF LOT 6 2. MARENGO 45X111 3. 2525-27 MARENGO ST 4. DU-2 STY 5. FILE #92890 6/07 PART

General Property Description

Lot Dimensions: 45X111 Stories: 2 SqFt - Total: 2991 SqFt - Source: Public Record Individual Metered?: Yes Number of Units: 2

Remarks & Misc

Remarks: This Neoclassical Revival camelback double is an architectural gem meticulously preserved through time. Inside, 12-foot ceilings and original millwork define the space, exuding elegance. This is further enhanced by stunning wood floors and meticulously preserved features like original mantles, double sash windows, and solid plaster walls. Located just three blocks from lively Freret Street, you'll enjoy easy access to renowned restaurants, local coffee shops, vibrant festivals, and neighborhood markets. The home welcomes you with traditional double parlors, which include spacious living and dining rooms. These flow seamlessly into large laundry rooms and rear kitchens that open onto a screened-in porch or covered deck. This leads to a delightful rear yard, perfect for outdoor entertaining or peaceful relaxation, with convenient access to the garage and workshop. Upstairs, each unit features two independent bedrooms and full bathrooms with classic clawfoot tubs. The owner's unit includes a finished attic, currently used as an office or den with a half bathroom. The layout is wonderfully flexible with internal door access, easily converting the owner's side to a three bedroom unit and the second unit to a one bedroom. This truly offers incredible potential! The expansive 45-foot wide by 111-foot long lot is a major asset, featuring a long driveway with room for multiple cars, trailers, boats, or even an RV. This leads to a dedicated garage and workshop, providing ample space for storage or creative endeavors. Don't miss the opportunity to own this remarkable home!

Office/Member/Contract Info

List AOR: NOMAR

Currently Not Used

Acreage Range: 0 - 0.5

Siding

Wood: 1

Parking

Detached: 1 Garage: 1

Foundation

Piers: 1

Roof

Metal: 1

Heating

Other: 1

Cooling

Wall Units: 1 Window Units: 1

Unit 1

Type: Other Beds: 2 Full Baths: 1 Partial Baths: 1 SqFt: 1640 Rent/Mo: 0

Unit 2

Type: Other Beds: 2 Full Baths: 1 SqFt: 1351 Rent/Mo: 0

Unit 3

Type: Other Beds: 2 Full Baths: 1 Rent/Mo: 0 SqFt: 1351

Unit 4

Type: Other Beds: 2 Full Baths: 1 Partial Baths: 1 SqFt: 1640 Rent/Mo: 0

Tenant Pays

Electric: 1 Gas: 1 Water: 1

Originating Details

Originating System ID: ROAMM Originating System Key: 52949874 Originating System Listing ID: 2529134 Originating System Name: ROAM Matrix

Location Tax Legal Info

Street Number: 2525-27 Street Name: MARENGO Street Parish: Orleans State: LA Zip Code: 70115 Tax Assessment Number: 614330504 Directions: From Napoleon turn on to Freret going toward downtown, let on Marengo, on the right Bounding Streets: Freret, Gen Taylor, S Robertson

Property Features

Siding: Wood Parking: Detached; Garage Foundation: Piers Roof: Metal Heating: Other Cooling: Wall Units; Window Units Tenant Pays: Electric; Gas; Water
Listing Office: McEnery Residential, LLC
IDX
Last Updated: January - 30 - 2026
The data relating to real estate for sale or lease on this website comes in part from the IDX program of the REALTOR® Association of Acadiana MLS. The IDX information is provided exclusively for consumers’ personal, non-commericial use and may not be used for any purpose other than to identify prospective properties consumers may be interested in purchasing. Data is deemed reliable but is not guaranteed accurate by the MLS.