17420 HIGHWAY 190 E Highway, Hammond, LA 70401
$3,000,000
Property Type:
Comm Bldg Sale/Lease
Square Footage:
31,320
Lot Size (sq. ft.):
109,336
Status:
Active
Current Price:
$3,000,000
List Date:
3/01/2023
Last Modified:
1/07/2026
Description
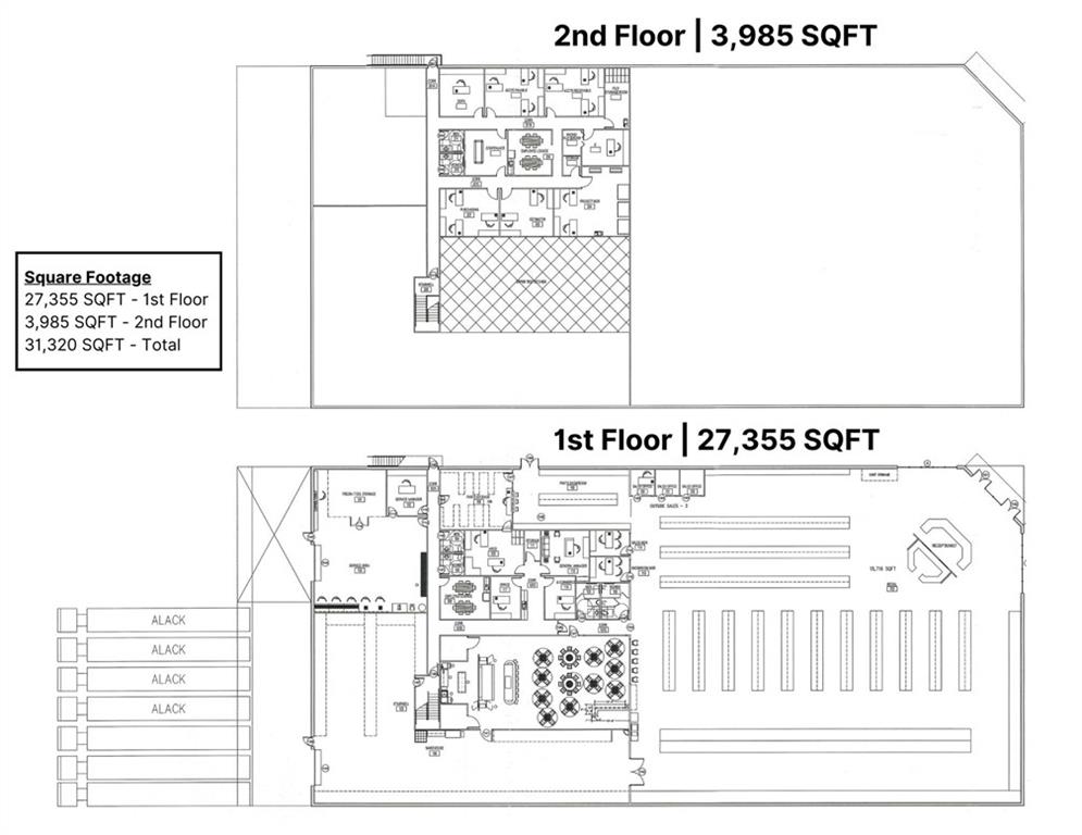
Prime Commercial Opportunity in Hammond, LA: Located off busy Hwy-190 with 14,305 AADT, just 1 mile from the regional airport, under 4 miles from I-12 and I-55, and less than an hour from New Orleans and Baton Rouge. The main offering is a 2-story office building on a 2.51-acre lot. Features a 31,320 sqft area with a 15,716 sqft showroom floor, 16 office spaces, a test kitchen, two lounges, a conference room, public/private restrooms, a service area, a warehouse, 7 truck bays, and a secure storage yard. There are also adjacent lots for expansion if needed. Unparalleled connectivity and diverse facilities make this property an extraordinary opportunity for businesses to establish a strong presence in Hammond.
Supplements: ********
More Information MLS# NO2394745
Listing Info
Delayed Marketing: No
For Sale: Yes
List Price/SqFt: 95.79
Document Modified: 2025-11-29 09:12:45.505693
Status: Active
Listing Date: 2023-03-01
Listing Price: 3000000
Current Price: $3,000,000
Modification Timestamp: 2026-01-07T02:12:44Z
Photo Modified: 2026-01-07T01:57:35Z
Location, Tax & Legal Info
Legal Desc: 2.51A BEING LOT 1-R OF A RESUB OF LOT 1 OF ALACK BUSINESS PARK IN SEC 19 T6SR8E B610 P885 B674 P443 B947 P779 B1049 P52 B1052 P109 B1052 P610 B1053 P250-465 B1070 P855 B1084 P713 B1172 P780 B1173 P589 B1194 P393 B1529 P120 B1541 P44 MAP 1070/855 1084/713 1117/453 1172/780 1173/589 1193/808 1538/440 1540/420 1541/44
General Property Description
Lot Dimensions: 630'x172'
Stories: 2
SqFt - Total: 31320
SqFt - Source: Measured
Acreage Range: 1 - 2.99
Load Dock?: 1
Acres: 2.51
Sale/Lease Info
Lease Purchase: Yes
Remarks & Misc
Remarks: Prime Commercial Opportunity in Hammond, LA: Located off busy Hwy-190 with 14,305 AADT, just 1 mile from the regional airport, under 4 miles from I-12 and I-55, and less than an hour from New Orleans and Baton Rouge. The main offering is a 2-story office building on a 2.51-acre lot. Features a 31,320 sqft area with a 15,716 sqft showroom floor, 16 office spaces, a test kitchen, two lounges, a conference room, public/private restrooms, a service area, a warehouse, 7 truck bays, and a secure storage yard. There are also adjacent lots for expansion if needed. Unparalleled connectivity and diverse facilities make this property an extraordinary opportunity for businesses to establish a strong presence in Hammond.
Office/Member/Contract Info
List AOR: NOMAR
Property Type
Industrial: 1
Professional/Office: 1
Parking
Parking Lot: 1
Features
Handicap Design: 1
Financing
Lease Purchase: 1
Owner Finance: 1
Originating Details
Originating System ID: ROAMM
Originating System Key: 36499780
Originating System Listing ID: 2394745
Originating System Name: ROAM Matrix
Location Tax Legal Info
Street Number: 17420
Street Name: HIGHWAY 190 E Highway
Parish: Tangipahoa
State: LA
Zip Code: 70401
Tax Assessment Number: 02099306
Zone: C-H
Directions: Bounding Streets: Hwy-190, Arc Way, Myers Rd
Property Features
Property Type: Industrial; Professional/Office
Features: Handicap Design
Parking: Parking Lot
Financing: Lease Purchase; Owner Finance
Documents
Listing Office:
Gulf States Real Estate Services of Louisiana, L.L
IDX
Last Updated: January - 07 - 2026
The data relating to real estate for sale or lease on this website comes in part from the IDX program of the REALTOR® Association of Acadiana MLS. The IDX information is provided exclusively for consumers’ personal, non-commericial use and may not be used for any purpose other than to identify prospective properties consumers may be interested in purchasing. Data is deemed reliable but is not guaranteed accurate by the MLS.
Floor Plan ›