1735 CONGRESS Street, New Orleans, LA 70117
$280,000
Property Type:
MultiFamily
Square Footage:
1,898
Status:
Active
Current Price:
$280,000
List Date:
2/25/2026
Last Modified:
4/26/2026
Overview
Description
...
(Read more)
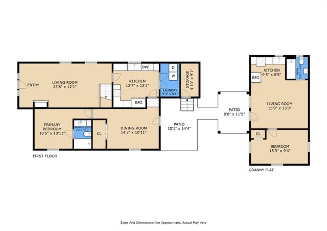
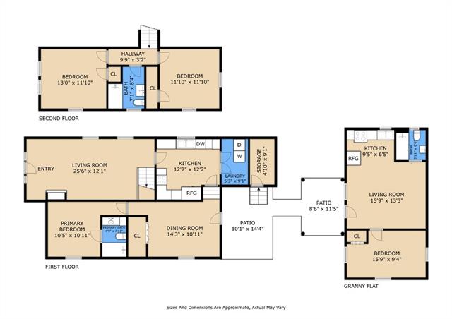
Full of opportunity! This charming split-level property offers the perfect blend of comfortable living and immediate income potential--an ideal addition to your investment portfolio or a smart owner-occupant opportunity. The main residence features 3 bedrooms and 2 full baths, highlighted by spacious living and dining areas, a large den, and a kitchen with granite countertops, stainless steel appliances, and abundant cabinetry. The primary suite includes a private en suite bath with granite vanity, while two additional bedrooms share a charming vintage hall bath. Adding exceptional value is the detached 1-bedroom, 1-bath guest house complete with a full kitchen and comfortable living area. Currently leased at $1,000 per month, this income-producing unit provides immediate cash flow to help offset your mortgage--making ownership even more attainable. Option for long-term rental, guest accommodations, multigenerational living, a private office, or creative studio space. Additional highlights include a private backyard with patio, off-street parking, and move-in ready condition throughout. With flexible living arrangements, proven rental income, and motivated sellers ready to negotiate for a smooth closing, this property is a standout investment opportunity you don't want to miss.
Listing Details MLS# NO2544712
Listing Info
- Delayed Marketing
- No
- Listing Price
- 280000
- List Price/SqFt
- 147.52
- Type
- Duplex
- Document Modified
- 2026-03-24 11:01:46.751155
- Modification Timestamp
- 2026-04-26T06:43:04Z
- Photo Modified
- 2026-02-26T02:20:14Z
Location Tax Legal Info
- Street Number
- 1735
- Street Name
- CONGRESS Street
- Parish
- Orleans
- State
- LA
- Zip Code
- 70117
- Tax Assessment Number
- P/079
- Directions
- Bounding Streets: N. Roman and N. Derbigny
General Property Description
- Number of Units
- 2
- Stories
- 2
- SqFt - Total
- 1898
- SqFt - Source
- Measured
- Lot Dimensions
- 37X98
Currently Not Used
- Acreage Range
- 0 - 0.5
Originating Details
- Originating System ID
- ROAMM
- Originating System Key
- 57179694
- Originating System Listing ID
- 2544712
- Originating System Name
- ROAM Matrix
Location, Tax & Legal Info
- Legal Desc
- SQ 793 LOT P CONGRESS 37 X 98 2/ST SGLE 9/RMS A/R WORKSHOP 1735 CONGRESS ST & 1735 A CONGRESS ST
More Information
Remarks & Misc
- Remarks
- Full of opportunity! This charming split-level property offers the perfect blend of comfortable living and immediate income potential--an ideal addition to your investment portfolio or a smart owner-occupant opportunity. The main residence features 3 bedrooms and 2 full baths, highlighted by spacious living and dining areas, a large den, and a kitchen with granite countertops, stainless steel appliances, and abundant cabinetry. The primary suite includes a private en suite bath with granite vanity, while two additional bedrooms share a charming vintage hall bath. Adding exceptional value is the detached 1-bedroom, 1-bath guest house complete with a full kitchen and comfortable living area. Currently leased at $1,000 per month, this income-producing unit provides immediate cash flow to help offset your mortgage--making ownership even more attainable. Option for long-term rental, guest accommodations, multigenerational living, a private office, or creative studio space. Additional highlights include a private backyard with patio, off-street parking, and move-in ready condition throughout. With flexible living arrangements, proven rental income, and motivated sellers ready to negotiate for a smooth closing, this property is a standout investment opportunity you don't want to miss.
Office/Member/Contract Info
- List AOR
- NOMAR
Foundation
- Piers
- Yes
- Slab
- Yes
Roof
- Composition
- Yes
Heating
- Central
- Yes
Cooling
- Central Air
- Yes
- Window Units
- Yes
Fencing
- Other
- Yes
Property Features
Foundation:
Piers; Slab
Roof:
Composition
Heating:
Central
Cooling:
Central Air; Window Units
Fencing:
Other
Documents
IDX
Listing Office:
Homesmart Realty South
Last Updated: April - 26 - 2026
The data relating to real estate for sale or lease on this website comes in part from the IDX program of the REALTOR® Association of Acadiana MLS. The IDX information is provided exclusively for consumers’ personal, non-commericial use and may not be used for any purpose other than to identify prospective properties consumers may be interested in purchasing. Data is deemed reliable but is not guaranteed accurate by the MLS.

New Attachment ›