1617 N DORGENOIS Street, New Orleans, LA 70119 (MLS# NO2524445)

1617 N DORGENOIS Street, New Orleans, LA 70119

$525,000
Property Type: MultiFamily Square Footage: 2,055 Lot Size (sq. ft.): 3,049 Status: Active
Current Price: $525,000 List Date: 10/09/2025 Last Modified: 1/30/2026

Description

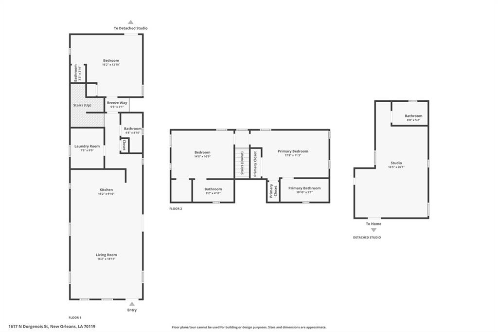
Calling all Jazz Fest lovers! This is a rare opportunity to own a modern home on oak-lined N. Dorgenois Street! Completed in 2020, this one-of-a-kind property was thoughtfully designed to meet the needs of today's ever-evolving lifestyles. The main portion of the home features soaring ceilings, sleek concrete floors, and a clean, modern aesthetic throughout. While the design feels fresh and contemporary, it also pays homage to the neighborhood's classic silhouettes, with playful architectural flourishes inside and out. With two bedrooms and two bathrooms in the main section, there's plenty of space and privacy--great for both everyday living and entertaining. Connected by a breezeway, you'll find a full suite with its own private bathroom--an ideal setup for guests or a home office. Off the back of the house, a spacious deck invites al fresco dining, barbecuing, and outdoor entertaining. Beyond the deck, a completely private guest apartment offers the ultimate retreat for visitors or the potential for rental income. Located by the sights and sounds of the 7th Ward and Esplanade Ridge, this home sits at the heart of one of the city's most vibrant cultural areas. Just blocks from the site of Jazz Fest, by Bayou St. John, and minutes from the French Quarter, it delivers the quintessential New Orleans lifestyle. Schedule your showing today! First Showing Sat 10/11 during open house Noon-1:30

Supplements: ********

More Information MLS# NO2524445

Listing Info

Delayed Marketing: No List Price/SqFt: 255.47 Status: Active Listing Date: 2025-10-09 Listing Price: 525000 Current Price: $525,000 Type: Duplex Modification Timestamp: 2026-01-30T20:11:10Z Photo Modified: 2026-01-30T20:11:10Z

Location, Tax & Legal Info

Legal Desc: SQ 1358 N DORGENOIS ST LOT F 90-15/105X30/26-3.11 1617 N DORGENOIS ST

General Property Description

Lot Dimensions: 90-15/105X30/26-3.11 Stories: 2 SqFt - Total: 2055 SqFt - Source: Measured Individual Metered?: No Number of Units: 2 Acres: 0.07

Remarks & Misc

Remarks: Calling all Jazz Fest lovers! This is a rare opportunity to own a modern home on oak-lined N. Dorgenois Street! Completed in 2020, this one-of-a-kind property was thoughtfully designed to meet the needs of today's ever-evolving lifestyles. The main portion of the home features soaring ceilings, sleek concrete floors, and a clean, modern aesthetic throughout. While the design feels fresh and contemporary, it also pays homage to the neighborhood's classic silhouettes, with playful architectural flourishes inside and out. With two bedrooms and two bathrooms in the main section, there's plenty of space and privacy--great for both everyday living and entertaining. Connected by a breezeway, you'll find a full suite with its own private bathroom--an ideal setup for guests or a home office. Off the back of the house, a spacious deck invites al fresco dining, barbecuing, and outdoor entertaining. Beyond the deck, a completely private guest apartment offers the ultimate retreat for visitors or the potential for rental income. Located by the sights and sounds of the 7th Ward and Esplanade Ridge, this home sits at the heart of one of the city's most vibrant cultural areas. Just blocks from the site of Jazz Fest, by Bayou St. John, and minutes from the French Quarter, it delivers the quintessential New Orleans lifestyle. Schedule your showing today! First Showing Sat 10/11 during open house Noon-1:30

Office/Member/Contract Info

List AOR: NOMAR

Currently Not Used

Acreage Range: 0 - 0.5

Foundation

Piers: 1

Roof

Composition: 1

Heating

Central: 1

Cooling

Central Air: 1

Unit 1

Type: Other SqFt: 1658 Rent/Mo: 0

Unit 2

Type: Other SqFt: 397 Rent/Mo: 0

Fencing

Other: 1

Unit 3

Type: Other Rent/Mo: 0 SqFt: 1658

Unit 4

Type: Other SqFt: 397 Rent/Mo: 0

Originating Details

Originating System ID: ROAMM Originating System Key: 52626729 Originating System Listing ID: 2524445 Originating System Name: ROAM Matrix

Location Tax Legal Info

Street Number: 1617 Dir: N Street Name: DORGENOIS Street Parish: Orleans State: LA Zip Code: 70119 Tax Assessment Number: 37W210221 Directions: Bounding Streets: Lapeyrouse, Rousselin, Onzaga

Property Features

Foundation: Piers Roof: Composition Heating: Central Cooling: Central Air Fencing: Other
Listing Office: REVE, REALTORS
IDX
Last Updated: January - 30 - 2026
The data relating to real estate for sale or lease on this website comes in part from the IDX program of the REALTOR® Association of Acadiana MLS. The IDX information is provided exclusively for consumers’ personal, non-commericial use and may not be used for any purpose other than to identify prospective properties consumers may be interested in purchasing. Data is deemed reliable but is not guaranteed accurate by the MLS.