1401 E JUDGE PEREZ Drive, Chalmette, LA 70043
$838,684
Property Type:
Comm Bldg Sale/Lease
Square Footage:
8,670
Lot Size (sq. ft.):
23,958
Status:
Active
Current Price:
$838,684
List Date:
3/26/2026
Last Modified:
3/27/2026
Description
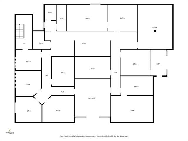
Prime corner commercial opportunity in the heart of Chalmette! This +-8,000 sq ft freestanding building sits on a highly visible corner lot with excellent traffic exposure and accessibility. Originally constructed as a bank, the property features a rare existing drive-thru overhang, making it perfect for financial institutions, medical, quick-service, or retail concepts looking for efficiency and convenience. The site offers approximately 30 parking spaces along with four points of ingress/egress, allowing for smooth traffic flow and easy customer access. Zoned C-1, this property supports a wide range of commercial uses and is perfectly positioned for an owner-user ready to establish or relocate their business in a high-demand area. The solid structure, functional layout, and prime location create a strong foundation for a variety of business models.
Supplements: ********
More Information MLS# NO2549828
Listing Info
Delayed Marketing: No
For Sale: Yes
List Price/SqFt: 96.73
Status: Active
Listing Date: 2026-03-26
Listing Price: 838684
Current Price: $838,684
Modification Timestamp: 2026-03-27T10:08:47Z
Photo Modified: 2026-03-27T04:01:43Z
Location, Tax & Legal Info
Legal Desc: LOTS 1 & 2 SQ L RIVERLAND PK & GREATER PTN. LOT 26 CHALONA -LOT 1 MEAS. 78.80' FRT. ON VOLPE X DEPTH & FRT. ON E. JUDGE PEREZ OF 71.48' X OPP. DEPTH O
General Property Description
Lot Dimensions: 126x69x106x145x173
Stories: 2
SqFt - Total: 8670
SqFt - Source: Appraiser
Acreage Range: 0.51 - 0.99
Acres: 0.55
Sale/Lease Info
Lease Purchase: No
Remarks & Misc
Remarks: Prime corner commercial opportunity in the heart of Chalmette! This +-8,000 sq ft freestanding building sits on a highly visible corner lot with excellent traffic exposure and accessibility. Originally constructed as a bank, the property features a rare existing drive-thru overhang, making it perfect for financial institutions, medical, quick-service, or retail concepts looking for efficiency and convenience. The site offers approximately 30 parking spaces along with four points of ingress/egress, allowing for smooth traffic flow and easy customer access. Zoned C-1, this property supports a wide range of commercial uses and is perfectly positioned for an owner-user ready to establish or relocate their business in a high-demand area. The solid structure, functional layout, and prime location create a strong foundation for a variety of business models.
Office/Member/Contract Info
List AOR: NOMAR
Property Type
Medical: 1
Professional/Office: 1
Retail: 1
Parking
Parking Lot: 1
Construction
Brick: 1
Concrete: 1
Stucco: 1
Features
Handicap Design: 1
Lot Description
Corner: 1
Originating Details
Originating System ID: ROAMM
Originating System Key: 57536462
Originating System Listing ID: 2549828
Originating System Name: ROAM Matrix
Location Tax Legal Info
Street Number: 1401
Dir: E
Street Name: JUDGE PEREZ Drive
Parish: St. Bernard
State: LA
Zip Code: 70043
Tax Assessment Number: 459200L00001
Zone: C-1
Directions: Bounding Streets: E Judge Perez, Chalona Dr, Volpe Dr
Property Features
Property Type: Medical; Professional/Office; Retail
Features: Handicap Design
Construction: Brick; Concrete; Stucco
Lot Description: Corner
Parking: Parking Lot
Listing Office:
ABEK Real Estate
IDX
Last Updated: March - 27 - 2026
The data relating to real estate for sale or lease on this website comes in part from the IDX program of the REALTOR® Association of Acadiana MLS. The IDX information is provided exclusively for consumers’ personal, non-commericial use and may not be used for any purpose other than to identify prospective properties consumers may be interested in purchasing. Data is deemed reliable but is not guaranteed accurate by the MLS.
